東雲キャナルコートCODAN16号棟 0911号室(9階/1LDK)の賃貸物件(賃貸マンション)
東京都江東区にある東雲キャナルコートCODAN16号棟 0911号室はオートロック、宅配ボックス、ウォークインクローゼット、室内洗濯機置場、都市ガスなどが特徴です。最寄り駅の東京メトロ 有楽町線辰巳駅から徒歩10分です。東雲キャナルコートCODAN16号棟 0911号室の詳細はハウスコム 押上店までお気軽にお問い合わせください!
情報更新日:
次回更新予定日:
※次回更新予定日について:お店側では順次空室確認を行っていますが、次回更新予定日までに空室確認が行えない場合には、この物件情報は自動的に削除されます。
東雲キャナルコートCODAN16号棟 0911号室の賃貸物件部屋概要
家賃 |
22.9万円
初期費用を |
|---|---|
共益費 |
15,000円
入居可能時期 |
敷金/礼金 |
1ヶ月 / 1.5ヶ月 |
保証金/ |
- / - |
最寄駅 |
|
所在地 |
東京都江東区東雲 |
部屋番号 |
0911号室 |
間取り |
1LDK(LDK26.5・洋6.7) |
専有面積 |
75.83㎡ |
築年数 |
2004年3月(築22年) |
階数 |
9階部分(地上14階地下1階建) |
方位・位置 |
西 / その他 |
物件種別 |
賃貸マンション |
構造 |
RC |
駐車場 |
無 |
小学校学区 |
辰巳小学校 |
中学校学区 |
辰巳中学校 |
他の空き部屋 |
0310号室 1007号室 |
- 学区データについて
- ※学区データは必ずしも正確とは限りません。詳細に関しては最寄店舗または各自治体の教育委員会に必ずご確認ください。
東雲キャナルコートCODAN16号棟 0911号室の特徴
セキュリティ
この物件の建物には、オートロックや宅配ボックスが設置されており、来客時には居室内のテレビモニターにて訪問者の顔を確認することができます。
室内設備
お風呂とトイレは一緒のユニットバスです。お風呂には、追い焚き機能が備わっています。 トイレは、温水洗浄便座機能付きになります。 女性に嬉しい設備の独立した洗面化粧台があります。 洗濯に便利な設備として、室内洗濯機置場があります。
居室状況
エアコンが設置されています。 収納スペースとして、通常よりも収納力の高いウォークインクローゼットがあります。
建物設備共用部分
建物の共用スペースに、急な外出や不在がちのご家庭の荷物受け取りに便利な宅配ボックスが設置されています。 駐輪場、バイク置き場が利用できます。
周辺施設
この物件の学区は、辰巳小学校区・辰巳中学校区です。
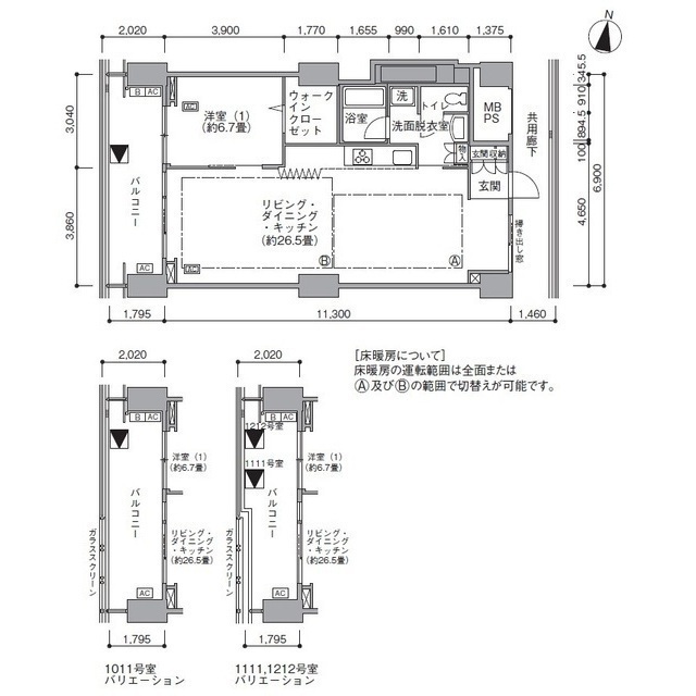
東雲キャナルコートCODAN16号棟 0911号室の間取り
間取り:1LDK
間取詳細:1LDK(LDK26.5・洋6.7)
専有面積:75.83㎡
方位:西
部屋位置:その他
東雲キャナルコートCODAN16号棟 0911号室の設備
バス・トイレ
追い焚き
温水洗浄便座
独立洗面台
玄関
TVモニタ付インターホン
オートロック
宅配ボックス
収納
ウォークインクローゼット
室内設備
エアコン
室内洗濯機置場
位置・立地
2階以上
インフラ
CATV
都市ガス
建物設備
駐輪場
バイク置き場
ライフステージ
一人暮らしに人気の設備
カップルに人気の設備
家族に人気の設備
夫婦に人気の設備
三世代で人気の設備
こだわり
雨の日でも洗濯したい
趣味
服やおしゃれが好き
東雲キャナルコートCODAN16号棟 0911号室の賃貸契約情報
毎月支払う |
家賃22.9万円/月共益費15,000円/月 |
|---|---|
初期費用 |
敷金1ヶ月 (22.9万円)礼金1.5ヶ月 (34.35万円)保証金-敷引き償却金- |
更新料 |
229,000円 |
鍵交換費用 |
- |
室内清掃費用 |
- |
鍵交換代 |
33,000円 |
駐車場料金 |
無 |
損保・ |
借家賠付きの火災保険にご加入いただきます。 |
保証会社 |
加入要 保証会社利用料:レジデンシャルパートナーズ 保証料:賃料等の50%(最低2万)、月額保証・事務手数料:賃料等の1%(更新料無) |
契約期間 |
2年 |
入居可能日 |
2026年01月上旬 |
フリーレント期間 |
- |
取引形態 |
一般媒介 |
備考 |
清掃費:105050円(退去時請求).エアコン清掃費:14300円(退去時請求) |
東雲キャナルコートCODAN16号棟 0911号室の建物情報
建物名称 |
東雲キャナルコートCODAN16号棟 |
|---|---|
最寄駅 |
|
所在地 |
東京都江東区東雲 |
階層 |
9階部分(地上14階地下1階建) |
構造 |
RC |
築年数 |
2004年3月(築22年) |
駐車場 |
無 |
小学校学区 |
辰巳小学校 |
中学校学区 |
辰巳中学校 |
- 学区データについて
- ※学区データは必ずしも正確とは限りません。詳細に関しては最寄店舗または各自治体の教育委員会に必ずご確認ください。
無料この物件に問い合わせ
- 東雲キャナルコートCODAN16号棟 0911号室

-
22.9万円
(共益費
15,000円)
- 敷
- 1ヶ月
- 礼
- 1.5ヶ月
- 保
- -
- 償
- -
東雲キャナルコートCODAN16号棟 0911号室の物件のお問い合わせ先・取り扱い店舗
ハウスコム 押上店
- アクセス
-
東京メトロ 半蔵門線「押上駅」B1出口徒歩1分
- 住所
- 〒130-0002 東京都墨田区業平4丁目16−2 三橋ビル 1F
- 営業時間
- 10:00~18:00
- 定休日
- 水曜日
- 営業エリア
- 墨田区・江東区・中央区・台東区・江戸川区・葛飾区・足立区・荒川区
- 取引態様
- 賃貸仲介業
















