クレイシアIDZ板橋本町アーバンレジデンス 401号室(4階/1K)の賃貸物件(賃貸マンション)
東京都板橋区にあるクレイシアIDZ板橋本町アーバンレジデンス 401号室はルーフバルコニー、角部屋、バイク置き場、ペット可・相談、学生限定・歓迎などが特徴です。最寄り駅の都営三田線板橋本町駅から徒歩5分です。クレイシアIDZ板橋本町アーバンレジデンス 401号室の詳細はハウスコム 高田馬場店までお気軽にお問い合わせください!
情報更新日:
次回更新予定日:
※次回更新予定日について:お店側では順次空室確認を行っていますが、次回更新予定日までに空室確認が行えない場合には、この物件情報は自動的に削除されます。
クレイシアIDZ板橋本町アーバンレジデンス 401号室の賃貸物件部屋概要
家賃 |
8.4万円
初期費用を |
|---|---|
共益費 |
15,000円
入居可能時期 |
敷金/礼金 |
1ヶ月 / 1ヶ月 |
保証金/ |
- / - |
最寄駅 |
|
所在地 |
東京都板橋区大和町 |
部屋番号 |
401号室 |
間取り |
1K(洋6.5) |
専有面積 |
25.69㎡ |
築年数 |
2023年3月(築3年) |
階数 |
4階部分(地上13階建) |
方位・位置 |
ー / 角部屋 |
物件種別 |
賃貸マンション |
構造 |
RC |
駐車場 |
- |
小学校学区 |
板橋第一小学校 |
中学校学区 |
板橋第三中学校 |
他の空き部屋 |
ー |
- 学区データについて
- ※学区データは必ずしも正確とは限りません。詳細に関しては最寄店舗または各自治体の教育委員会に必ずご確認ください。
クレイシアIDZ板橋本町アーバンレジデンス 401号室の特徴
-
一人暮らしに人気の設備

-
カップルに人気の設備

-
家族に人気の設備

-
夫婦に人気の設備

-
三世代で人気の設備

-
セキュリティ対策重視

-
外で子どもと遊びたい

-
身だしなみに気をつかいたい

-
雨の日でも洗濯したい

-
洋室で暮らしたい

-
服やおしゃれが好き

-
ガーデニングが好き

契約条件
この物件は、入居者が学生限定もしくは歓迎でご契約できます。 ペットの飼育もご相談ください。
セキュリティ
この物件の建物には、オートロックや防犯カメラや宅配ボックスが設置されており、来客時には居室内のテレビモニターにて訪問者の顔を確認することができます。
室内設備
システムキッチンには、2つ以上のガスコンロが備え付けられています。 トイレは、温水洗浄便座機能付きになります。 女性に嬉しい設備の独立した洗面化粧台があります。 洗濯に便利な設備として、浴室乾燥機も設置されているので、梅雨時の生乾き臭も比較的防ぐことができます。
居室状況
お部屋の床は、フローリングとなっています。収納スペースとして、基本的な居室にクローゼットを設置、通常よりも収納力の高いウォークインクローゼット、玄関にはシューズボックスがあります。
建物設備共用部分
居室外の専有スペースとして、洗濯物を干すなどの用途として利用できるバルコニーがあります。 建物の共用スペースに、日々の出入に便利なエレベーターや、いざという時の防犯カメラや、急な外出や不在がちのご家庭の荷物受け取りに便利な宅配ボックスが設置されています。 駐輪場、バイク置き場が利用できます。
周辺施設
この物件の学区は、板橋第一小学校区・板橋第三中学校区です。
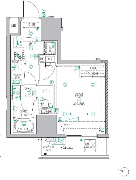
クレイシアIDZ板橋本町アーバンレジデンス 401号室の間取り
間取り:1K
間取詳細:1K(洋6.5)
専有面積:25.69㎡
方位:ー
部屋位置:角部屋
クレイシアIDZ板橋本町アーバンレジデンス 401号室の設備
キッチン
システムキッチン
ガスコンロ
ガスコンロ二口以上
バス・トイレ
バス・トイレ別
浴室乾燥機
温水洗浄便座
独立洗面台
玄関
TVモニタ付インターホン
オートロック
宅配ボックス
収納
クローゼット
ウォークインクローゼット
シューズボックス
バルコニー
バルコニー
ルーフバルコニー
室内設備
フローリング
位置・立地
2階以上
角部屋
インフラ
インターネット可
CATV
BS
CS
建物設備
エレベーター
防犯カメラ
駐輪場
バイク置き場
分譲賃貸
入居条件
ペット可・相談
学生限定・歓迎
ライフステージ
一人暮らしに人気の設備
カップルに人気の設備
家族に人気の設備
夫婦に人気の設備
三世代で人気の設備
こだわり
セキュリティ対策重視
外で子どもと遊びたい
身だしなみに気をつかいたい
雨の日でも洗濯したい
洋室で暮らしたい
趣味
服やおしゃれが好き
ガーデニングが好き
クレイシアIDZ板橋本町アーバンレジデンス 401号室の賃貸契約情報
毎月支払う |
家賃8.4万円/月共益費15,000円/月 |
|---|---|
初期費用 |
敷金1ヶ月 (8.4万円)礼金1ヶ月 (8.4万円)保証金-敷引き償却金- |
更新料 |
84,000円 |
鍵交換費用 |
16,500円 |
室内清掃費用 |
- |
駐車場料金 |
- |
損保・ |
借家賠付きの火災保険にご加入いただきます。 |
保証会社 |
加入要 保証会社利用料:初回契約時:40%、更新時:10,000円、その他プラン有※新日本信用保証の場合口座振替手数料216円(税込)/月、ジャックスの場合口座振替手数料無し |
契約期間 |
2年 |
入居可能日 |
2025年11月下旬 |
フリーレント期間 |
- |
取引形態 |
一般媒介 |
備考 |
ASSIST24 月額850円(税込み)、退去時ルームクリーニング代48400円(税込み)、 ペット飼育可(保証金2ヵ月・退去時償却、小型犬・猫いずれか1匹)、 解約予告1か月前 |
クレイシアIDZ板橋本町アーバンレジデンス 401号室の建物情報
建物名称 |
クレイシアIDZ板橋本町アーバンレジデンス |
|---|---|
最寄駅 |
|
所在地 |
東京都板橋区大和町 |
階層 |
4階部分(地上13階建) |
構造 |
RC |
築年数 |
2023年3月(築3年) |
駐車場 |
- |
小学校学区 |
板橋第一小学校 |
中学校学区 |
板橋第三中学校 |
- 学区データについて
- ※学区データは必ずしも正確とは限りません。詳細に関しては最寄店舗または各自治体の教育委員会に必ずご確認ください。
無料この物件に問い合わせ
- クレイシアIDZ板橋本町アーバンレジデンス 401号室

-
8.4万円
(共益費
15,000円)
- 敷
- 1ヶ月
- 礼
- 1ヶ月
- 保
- -
- 償
- -
クレイシアIDZ板橋本町アーバンレジデンス 401号室の物件のお問い合わせ先・取り扱い店舗
ハウスコム 高田馬場店
- アクセス
-
山手線「高田馬場駅」徒歩5分
- 住所
- 〒169-0075 東京都新宿区高田馬場1-17-18 マルシメビル1階
- 営業時間
- 10:00~18:00
- 定休日
- 水曜日
- 営業エリア
- 新宿区 豊島区 杉並区 中野区 文京区
- 取引態様
- 賃貸仲介業

















