GENOVIA二子新地 102号室(1階/1K)の賃貸物件(賃貸マンション)
神奈川県川崎市高津区にあるGENOVIA二子新地 102号室はシステムキッチン、クローゼット、防犯カメラ、ルームシェア可・相談、即入居可などが特徴です。最寄り駅の東急田園都市線二子新地駅から徒歩5分です。GENOVIA二子新地 102号室の詳細はハウスコム 向ヶ丘遊園店までお気軽にお問い合わせください!
情報更新日:
次回更新予定日:
※次回更新予定日について:お店側では順次空室確認を行っていますが、次回更新予定日までに空室確認が行えない場合には、この物件情報は自動的に削除されます。
GENOVIA二子新地 102号室の賃貸物件部屋概要
家賃 |
12万円
初期費用を |
|---|---|
共益費 |
10,000円
入居可能時期 |
敷金/礼金 |
- / - |
保証金/ |
- / - |
最寄駅 |
|
所在地 |
神奈川県川崎市高津区瀬田 |
部屋番号 |
102号室 |
間取り |
1K(洋8) |
専有面積 |
25.35㎡ |
築年数 |
新築 |
階数 |
1階部分(地上5階建) |
方位・位置 |
ー / その他 |
物件種別 |
賃貸マンション |
構造 |
RC |
駐車場 |
- |
小学校学区 |
東高津小学校 |
中学校学区 |
高津中学校 |
他の空き部屋 |
101号室 103号室 104号室 105号室 106号室 107号室 108号室 109号室 110号室 111号室 112号室 113号室 114号室 115号室 116号室 117号室 401号室 402号室 403号室 404号室 405号室 406号室 407号室 408号室 409号室 410号室 411号室 412号室 413号室 414号室 415号室 416号室 417号室 418号室 419号室 420号室 421号室 422号室 423号室 424号室 501号室 502号室 503号室 504号室 505号室 506号室 507号室 508号室 509号室 510号室 511号室 512号室 513号室 514号室 515号室 516号室 517号室 518号室 |
- 学区データについて
- ※学区データは必ずしも正確とは限りません。詳細に関しては最寄店舗または各自治体の教育委員会に必ずご確認ください。
GENOVIA二子新地 102号室の特徴
-
一人暮らしに人気の設備

-
カップルに人気の設備

-
家族に人気の設備

-
夫婦に人気の設備

-
三世代で人気の設備

-
外で子どもと遊びたい

-
雨の日でも洗濯したい

-
洋室で暮らしたい

-
持ち物をスッキリ隠す収納部屋

-
ガーデニングが好き

契約条件
この物件は、2人入居やルームシェアもご契約できます。 ペットの飼育もご相談ください。 敷金と礼金が無料なため、初期費用が比較的安くなる傾向にあります。
セキュリティ
この物件の建物には、オートロックや防犯カメラや宅配ボックスが設置されており、来客時には居室内のテレビモニターにて訪問者の顔を確認することができます。
室内設備
システムキッチンが備え付けられています。 トイレは、温水洗浄便座機能付きになります。 女性に嬉しい設備の独立した洗面化粧台があります。 洗濯に便利な設備として、浴室乾燥機も設置されているので、梅雨時の生乾き臭も比較的防ぐことができます。
居室状況
お部屋の床は、フローリングとなっており、エアコンが設置されています。 収納スペースとして、基本的な居室にクローゼットがあります。
建物設備共用部分
居室外の専有スペースとして、洗濯物を干すなどの用途として利用できるバルコニーがあります。 建物の共用スペースに、日々の出入に便利なエレベーターや、いざという時の防犯カメラや、急な外出や不在がちのご家庭の荷物受け取りに便利な宅配ボックスが設置されています。
周辺施設
この物件の学区は、東高津小学校区・高津中学校区です。
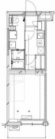
GENOVIA二子新地 102号室の間取り
間取り:1K
間取詳細:1K(洋8)
専有面積:25.35㎡
方位:ー
部屋位置:その他
GENOVIA二子新地 102号室の設備
キッチン
システムキッチン
バス・トイレ
バス・トイレ別
浴室乾燥機
温水洗浄便座
独立洗面台
玄関
TVモニタ付インターホン
オートロック
宅配ボックス
収納
クローゼット
全居室収納
バルコニー
バルコニー
ルーフバルコニー
室内設備
エアコン
フローリング
位置・立地
1階
インフラ
都市ガス
建物設備
エレベーター
防犯カメラ
入居条件
ペット可・相談
2人入居可
ルームシェア可・相談
即入居可
ライフステージ
一人暮らしに人気の設備
カップルに人気の設備
家族に人気の設備
夫婦に人気の設備
三世代で人気の設備
こだわり
外で子どもと遊びたい
雨の日でも洗濯したい
洋室で暮らしたい
持ち物をスッキリ隠す収納部屋
趣味
ガーデニングが好き
GENOVIA二子新地 102号室の賃貸契約情報
毎月支払う |
家賃12万円/月共益費10,000円/月 |
|---|---|
初期費用 |
敷金-礼金-保証金-敷引き償却金- |
更新料 |
120,000円 |
鍵交換費用 |
- |
室内清掃費用 |
- |
契約事務手数料 |
11,000円 |
消臭抗菌サービス |
11,000円 |
外国籍サポートプラン |
10,800円 |
駐車場料金 |
- |
損保・ |
借家賠付きの火災保険にご加入いただきます。 |
保証会社 |
加入要 保証会社利用料:ルームバンクインシュア 一番手「RBI」初回保証料:40%(ペット飼育時60%) 外国籍:100%+外国籍サポート年間10,800円 (※審査により変更有・要確認) 外国籍家賃:クレカQR決 |
契約期間 |
2年 |
入居可能日 |
即入居可 |
フリーレント期間 |
- |
取引形態 |
一般媒介 |
備考 |
- |
GENOVIA二子新地 102号室の建物情報
建物名称 |
GENOVIA二子新地 |
|---|---|
最寄駅 |
|
所在地 |
神奈川県川崎市高津区瀬田 |
階層 |
1階部分(地上5階建) |
構造 |
RC |
築年数 |
新築 |
駐車場 |
- |
小学校学区 |
東高津小学校 |
中学校学区 |
高津中学校 |
- 学区データについて
- ※学区データは必ずしも正確とは限りません。詳細に関しては最寄店舗または各自治体の教育委員会に必ずご確認ください。
無料この物件に問い合わせ
- GENOVIA二子新地 102号室

-
12万円
(共益費
10,000円)
- 敷
- -
- 礼
- -
- 保
- -
- 償
- -
GENOVIA二子新地 102号室の物件のお問い合わせ先・取り扱い店舗
ハウスコム 向ヶ丘遊園店
- アクセス
-
小田急小田原線「向ヶ丘遊園駅」南口徒歩1分
- 住所
- 〒214-0014 神奈川県川崎市多摩区登戸2735 中和ビル 1階
- 営業時間
- 10:00~18:00
- 定休日
- なし
- 営業エリア
- 神奈川県川崎市多摩区,神奈川県川崎市高津区,神奈川県川崎市麻生区,東京都世田谷区,東京都狛江市,東京都調布市,東京都町田市,東京都稲城市
- 取引態様
- 賃貸仲介業

