ジェノヴィア二子新地 213号室(2階/1K)の賃貸物件(賃貸マンション)
神奈川県川崎市高津区にあるジェノヴィア二子新地 213号室はシステムキッチン、バス・トイレ別、クローゼット、ペット可・相談、オンライン相談可などが特徴です。最寄り駅の東急田園都市線二子新地駅から徒歩5分です。ジェノヴィア二子新地 213号室の詳細はハウスコム 溝の口店までお気軽にお問い合わせください!
情報更新日:
次回更新予定日:
※次回更新予定日について:お店側では順次空室確認を行っていますが、次回更新予定日までに空室確認が行えない場合には、この物件情報は自動的に削除されます。
ジェノヴィア二子新地 213号室の賃貸物件部屋概要
家賃 |
12.25万円
初期費用を |
|---|---|
共益費 |
10,000円
入居可能時期 |
敷金/礼金 |
- / - |
保証金/ |
- / - |
最寄駅 |
|
所在地 |
神奈川県川崎市高津区瀬田 |
部屋番号 |
213号室 |
間取り |
1K(洋0) |
専有面積 |
25.35㎡ |
築年数 |
新築 |
階数 |
2階部分(地上5階建) |
方位・位置 |
北 / その他 |
物件種別 |
賃貸マンション |
構造 |
RC |
駐車場 |
- |
小学校学区 |
東高津小学校 |
中学校学区 |
高津中学校 |
他の空き部屋 |
101号室 102号室 103号室 104号室 105号室 106号室 107号室 108号室 109号室 110号室 111号室 112号室 113号室 114号室 115号室 116号室 117号室 201号室 202号室 203号室 204号室 205号室 206号室 207号室 208号室 209号室 210号室 211号室 212号室 214号室 215号室 216号室 217号室 218号室 219号室 220号室 221号室 222号室 223号室 224号室 401号室 402号室 403号室 404号室 405号室 406号室 407号室 408号室 409号室 410号室 411号室 412号室 413号室 414号室 415号室 416号室 417号室 418号室 419号室 420号室 421号室 422号室 423号室 424号室 501号室 502号室 503号室 504号室 505号室 506号室 507号室 508号室 509号室 510号室 511号室 512号室 513号室 514号室 515号室 516号室 517号室 518号室 |
- 学区データについて
- ※学区データは必ずしも正確とは限りません。詳細に関しては最寄店舗または各自治体の教育委員会に必ずご確認ください。
ジェノヴィア二子新地 213号室の特徴
-
一人暮らしに人気の設備

-
カップルに人気の設備

-
家族に人気の設備

-
夫婦に人気の設備

-
三世代で人気の設備

-
セキュリティ対策重視

-
外で子どもと遊びたい

-
身だしなみに気をつかいたい

-
雨の日でも洗濯したい

-
洋室で暮らしたい

-
ガーデニングが好き

契約条件
この物件は、外国籍の方もご相談の上、2人入居もご契約できます。 ペットの飼育もご相談ください。 また、ご契約時に保証人は不要です。 敷金と礼金が無料なため、初期費用が比較的安くなる傾向にあります。
セキュリティ
この物件の建物には、オートロックや防犯カメラや宅配ボックスが設置されており、来客時には居室内のテレビモニターにて訪問者の顔を確認することができます。
室内設備
システムキッチンには、2つ以上のガスコンロが備え付けられています。 トイレは、温水洗浄便座機能付きになります。 女性に嬉しい設備の独立した洗面化粧台があります。 洗濯に便利な設備として、室内洗濯機置場があります。浴室乾燥機も設置されているので、梅雨時の生乾き臭も比較的防ぐことができます。
居室状況
お部屋の床は、フローリングとなっており、エアコンが設置されています。 収納スペースとして、基本的な居室にクローゼットを設置、玄関にはシューズボックスがあります。
建物設備共用部分
居室外の専有スペースとして、洗濯物を干すなどの用途として利用できるバルコニーがあります。 建物の共用スペースに、日々の出入に便利なエレベーターや、いざという時の防犯カメラや、急な外出や不在がちのご家庭の荷物受け取りに便利な宅配ボックスが設置されています。 駐輪場が利用できます。
周辺施設
この物件の学区は、東高津小学校区・高津中学校区です。
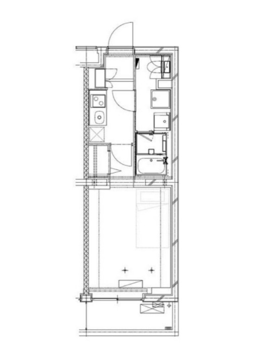
ジェノヴィア二子新地 213号室の間取り
間取り:1K
間取詳細:1K(洋0)
専有面積:25.35㎡
方位:北
部屋位置:その他
ジェノヴィア二子新地 213号室の設備
キッチン
システムキッチン
ガスコンロ
ガスコンロ二口以上
バス・トイレ
バス・トイレ別
浴室乾燥機
温水洗浄便座
独立洗面台
玄関
TVモニタ付インターホン
オートロック
宅配ボックス
収納
クローゼット
シューズボックス
バルコニー
バルコニー
ルーフバルコニー
室内設備
エアコン
フローリング
室内洗濯機置場
位置・立地
2階以上
インフラ
インターネット可
都市ガス
建物設備
エレベーター
防犯カメラ
駐輪場
分譲賃貸
入居条件
ペット可・相談
2人入居可
外国人可・相談
オンライン相談可
オンライン内見可
保証人不要
ライフステージ
一人暮らしに人気の設備
カップルに人気の設備
家族に人気の設備
夫婦に人気の設備
三世代で人気の設備
こだわり
セキュリティ対策重視
外で子どもと遊びたい
身だしなみに気をつかいたい
雨の日でも洗濯したい
洋室で暮らしたい
趣味
ガーデニングが好き
ジェノヴィア二子新地 213号室の賃貸契約情報
毎月支払う |
家賃12.25万円/月共益費10,000円/月 |
|---|---|
初期費用 |
敷金-礼金-保証金-敷引き償却金- |
更新料 |
122,500円 |
鍵交換費用 |
- |
室内清掃費用 |
- |
契約事務手数料 |
11,000円 |
駐車場料金 |
- |
損保・ |
借家賠付きの火災保険にご加入いただきます。 |
保証会社 |
加入要 保証会社利用料:初回保証料:賃料等総額の40% 月額保証料:2700円(保険、駆けつけ費用含) 外国籍の場合、初回保証料100% 年毎10800円 |
契約期間 |
2年 |
入居可能日 |
相談 |
フリーレント期間 |
- |
取引形態 |
一般媒介 |
備考 |
保証会社利用必須 法人契約は敷金1ヶ月増額 ハウスクリーニング費:38500円(退去時) ペット飼育時:敷金1ヶ月増額(償却)初回保証料20%(敷金解約時償却に原状回復費用は含まれません) 短期解約違約金有:1年未満は賃料、管理費総額1ヶ月分 |
ジェノヴィア二子新地 213号室の建物情報
建物名称 |
ジェノヴィア二子新地 |
|---|---|
最寄駅 |
|
所在地 |
神奈川県川崎市高津区瀬田 |
階層 |
2階部分(地上5階建) |
構造 |
RC |
築年数 |
新築 |
駐車場 |
- |
小学校学区 |
東高津小学校 |
中学校学区 |
高津中学校 |
- 学区データについて
- ※学区データは必ずしも正確とは限りません。詳細に関しては最寄店舗または各自治体の教育委員会に必ずご確認ください。
無料この物件に問い合わせ
- ジェノヴィア二子新地 213号室

-
12.25万円
(共益費
10,000円)
- 敷
- -
- 礼
- -
- 保
- -
- 償
- -
ジェノヴィア二子新地 213号室の物件のお問い合わせ先・取り扱い店舗
ハウスコム 溝の口店
- アクセス
-
東急田園都市線「溝の口駅」北口徒歩2分
- 住所
- 〒213-0001 神奈川県川崎市高津区溝口1丁目8−1 溝ノ口丸広ビル1階
- 営業時間
- 10:00~18:00
- 定休日
- なし
- 営業エリア
- 川崎市中原区,川崎市多摩区,川崎市宮前区,川崎市高津区,稲城市
- 取引態様
- 賃貸仲介業







