ルビア B
賃貸アパート
- 所在地
- 愛知県一宮市起
- 最寄駅
-
- 名鉄名古屋本線 名鉄一宮駅 (名鉄新栄町まで徒歩3分、駅までバスで13分)
- 東海道本線(JR東海) 尾張一宮駅 (名鉄 新栄町まで徒歩3分、駅までバスで14分)
- 築年月
- 2022年9月
- 構造
- 木造
- 階数
- 地上2階
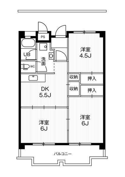
103号室

写真を見る
6.35万円(共益費 4,100円)
- 敷
- -
- 礼
- 83,500円
- 保
- -
- 償
- -
公開











