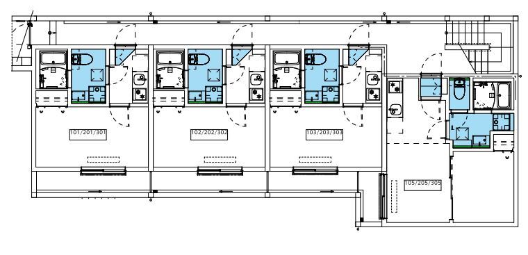
305号室

写真を見る
8.8万円 (共益費 3,000円)
- 敷
- -
- 礼
- -
- 保
- -
- 償
- -
公開
グローベルメゾン十日市場(グローベルメゾントオカイチバ)は、神奈川県横浜市緑区十日市場町にある3階建の賃貸アパートです。築年月は、2021年7月で現在築5年になります。最寄り駅の横浜線十日市場駅から徒歩5分です。
この建物に4件の情報更新日:
取り扱う不動産会社・店舗が4社、募集中の部屋が4部屋あります。

写真を見る








8.8万円 (共益費 3,000円)
公開

写真を見る








8.8万円 (共益費 3,000円)
公開

写真を見る








8.8万円 (共益費 3,000円)
公開

写真を見る








8.8万円 (共益費 3,000円)
公開
50代 / 女性 / 元住人
十日市場町自体が安全な地域なので治安・安全性に不安を感じたことはなかったです。人通りもあるので安心です。
20代 / 男性 / 住人
駅近かつ駅回りが栄えているわけではないので、治安は良いといえる。特に犯罪や暴行などの事件が起きているようなことに遭遇したことはない。
※口コミに関するお問い合わせはこちらからお願いします。





JR横浜線・横浜市営地下鉄中山駅・相鉄線鶴ヶ峰駅・三ツ境駅から相鉄バスよこはま動物園行きバスで15分、終点下車すぐ
ようこそ、世界一周の動物旅行へ
「生命の共生・自然との調和」をメインテーマに掲げている動物園。園内を世界の気候帯・地域別に8つのゾーンに分けて、生息地別に約100種760点の動物を展示する。「生息環境展示」という独特の展示方法によって、動物を自然に近い姿で見られる。イベント開催など変更の場合あり、要HP確認。
提供元:昭文社




東急田園都市線青葉台駅からすぐ
温かみのある快適なホテル。ビジネスマンや受験生の利用が多い
こぢんまりとした、我が家のようにくつろげるホテル。ビジネスから受験生の宿泊、各種パーティーにも利用できる。全客室に大きめのライティングデスク、ズボンプレッサーがある。
提供元:昭文社

東急田園都市線青葉台駅から徒歩3分
音楽設備が充実のホール。多彩な演目に多くの人が訪れる
理想的な音楽環境を備えリサイタルや室内楽などのクラシックに最適なホール。多彩なホール主催公演では、クラシックのコアのファンから初めてという子供までさまざまなニーズに対応。
提供元:昭文社