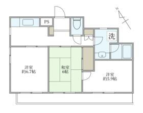
201号室

8万円 (共益費 3,000円)
- 敷
- 1ヶ月
- 礼
- -
- 保
- -
- 償
- 1ヶ月
公開
エスポワール21は、神奈川県川崎市多摩区菅北浦にある5階建の賃貸マンションです。築年月は、1990年3月で現在築36年になります。最寄り駅の南武線稲田堤駅から徒歩4分です。
この建物に2件の情報更新日:
60代以上 / 男性 / 住人
宿河原駅に併行して二ヶ領用水が流れ、桜の季節には河岸で花見の宴会が開かれて、プチ名所になっている。また、ちょっと歩けば多摩川があり、また足を伸ばせば生田緑地など、周辺は緑も多く、自然環境は豊かである。
40代 / 女性 / 賃貸検討者
多摩川が近く散歩も楽しめます。桜の時期は2ヶ領用水に沿って歩けばお花見もできるし、梨園が広がり、多摩川梨は本当に美味しいので知人に配ったりもできますし、自然豊かです。 調布の花火大会の時は特等席で見ることができ、自慢になります。 野鳥の声で目が覚めることもあるくらい、環境は良いと思います。
※口コミに関するお問い合わせはこちらからお願いします。




小田急小田原線生田駅から徒歩15分
自然豊かな貸切り制のドッグラン
バッティングセンターや釣り堀など、さまざまな施設が併設された東京バッティングセンターPARTIII内にあるドッグラン。貸切制なので、ほかのワンコに気兼ねすることなく思いきり遊ばせよう。
提供元:昭文社

JR南武線登戸駅から徒歩7分
実りの季節はナシの他、ブドウやミカンなどの果実狩りが楽しめる
天保元(1830)年からある果樹園。四代目主人が丹誠込めて育てたナシは20種類、8月中旬から9月下旬までが旬。ほかにブドウ、カキ、ミカン、リンゴ、キウイなどさまざまな味覚狩りができる。
提供元:昭文社
小田急小田原線向ヶ丘遊園駅から徒歩17分
迫力ある作品が多く並ぶ
戦後日本のアバンギャルド芸術の旗手として活躍した岡本太郎の作品を展示する美術館。常設展・企画展とともに年4回の展覧会を行っている。
提供元:昭文社