401号室

写真を見る
8.3万円 (共益費 5,000円)
- 敷
- -
- 礼
- 1ヶ月
- 保
- -
- 償
- -
公開
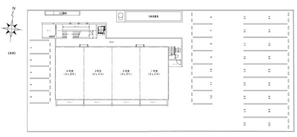
CoCo(ココ)は、静岡県浜松市中央区西浅田にある5階建の賃貸マンションです。築年月は、2024年1月で現在築2年になります。最寄り駅の東海道本線(JR東海)浜松駅から徒歩20分です。
この建物に5件の情報更新日:
参考賃料 |
8.3万円 |
|---|---|
間取り |
2LDK |
空室 |
5部屋 空室を見る |
物件種別 |
賃貸マンション |
階層 |
地上5階 |
構造 |
RC |
築年数 |
2024年1月(築2年) |
駐車場 |
8,800円 |
最寄駅 |
|
所在地 |
静岡県浜松市中央区西浅田 |
小学校学区 |
|
中学校学区 |
取り扱う不動産会社・店舗が5社、募集中の部屋が5部屋あります。

写真を見る





















8.3万円 (共益費 5,000円)
公開

写真を見る





















8.3万円 (共益費 5,000円)
公開

写真を見る





















8.3万円 (共益費 5,000円)
公開

写真を見る





















8.3万円 (共益費 5,000円)
公開

写真を見る





















8.3万円 (共益費 5,000円)
公開
30代 / 男性 / 購入検討者
周辺の治安は大変良いと思います。近くの東小学校はとても評判の良い学校のようですし、一軒家も広くて管理が行き届いているところが多いです。景観地区とのことで道などもきれいに整備されており、安全です。夜間も物騒に感じた事はありません。
30代 / 女性 / 賃貸検討者
地域全体のことだが、道が狭く歩道も無い。その割に車通りが多い。昔からの住宅街だからか、全体的に混み込みした印象。ハザードマップでは水害や周辺の崖崩れがやや気になるかも。
※口コミに関するお問い合わせはこちらからお願いします。


