302号室

写真を見る
7.4万円 (共益費 4,000円)
- 敷
- -
- 礼
- 1ヶ月
- 保
- -
- 償
- -
公開
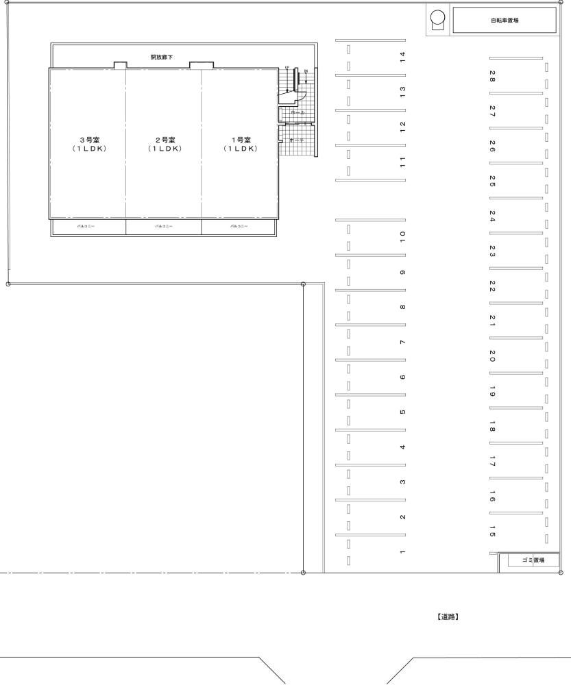
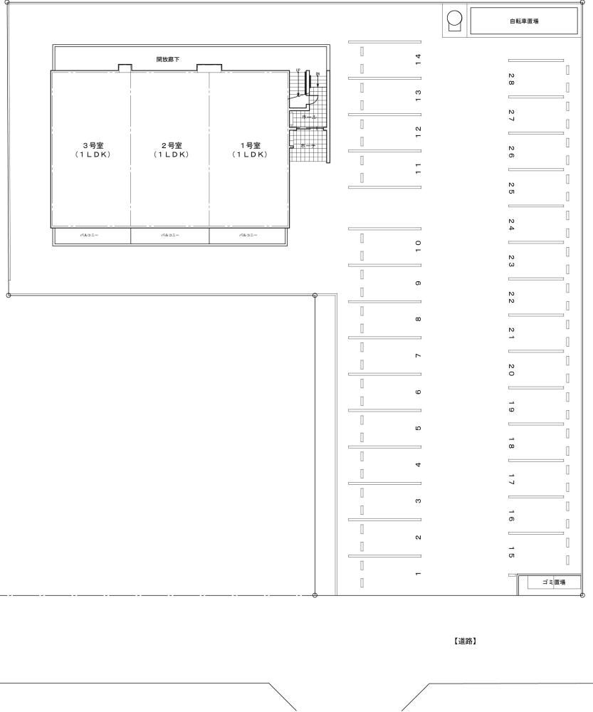
ELPIS・Kira(エルピス・キラ)は、静岡県浜松市中央区高丘西にある4階建の賃貸マンションです。築年月は、2023年3月で現在築3年になります。最寄り駅の遠州鉄道上島駅からバスで31分、開成中学入り口から徒歩5分です。
この建物に5件の情報更新日:
取り扱う不動産会社・店舗が5社、募集中の部屋が5部屋あります。

写真を見る



















7.4万円 (共益費 4,000円)
公開

写真を見る



















7.4万円 (共益費 4,000円)
公開

写真を見る



















7.4万円 (共益費 4,000円)
公開

写真を見る



















7.4万円 (共益費 4,000円)
公開

写真を見る



















7.4万円 (共益費 4,000円)
公開


