***号室

写真を見る
6.5万円 (共益費 6,500円)
- 敷
- -
- 礼
- 1ヶ月
- 保
- -
- 償
- -
公開
玉本町の完工年月(2007年6月)築の賃貸マンションは、京都府京都市下京区玉本町にある3階建の賃貸マンションです。築年月は、2007年6月で現在築19年になります。最寄り駅の東海道本線(JR西日本)京都駅から徒歩9分です。
この建物に1件の情報更新日:
参考賃料 |
6.5万円 |
|---|---|
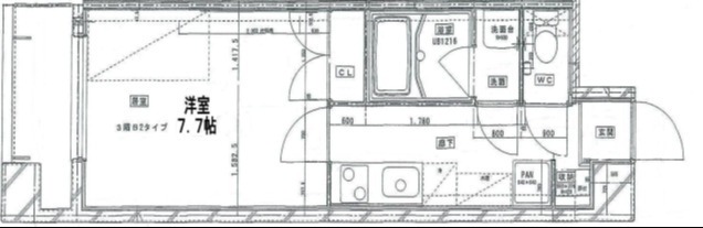
間取り |
1K |
空室 |
1部屋 空室を見る |
物件種別 |
賃貸マンション |
階層 |
地上3階 |
構造 |
RC |
築年数 |
2007年6月(築19年) |
駐車場 |
空無し |
最寄駅 |
|
所在地 |
京都府京都市下京区玉本町 |
小学校学区 |
下京渉成小学校 |
中学校学区 |
下京中学校 |
30代 / 男性 / 元住人
近くにはセブンイレブンがあるので便利。飲食店の数が多いとは言えないが自炊派であれば全く問題ない。2021年秋にヨドバシカメラの地下に激安スーパーのロピアがオープンしたので買い物の選択肢が広がった。
40代 / 男性 / 元住人
病院は小さなものが近くにあり、困りませんし、大きな病院は、京都駅近くにはありますので、何かのときにも困らないかと思います。
※口コミに関するお問い合わせはこちらからお願いします。



JR嵯峨野線花園駅から徒歩5分
精進料理の名店で禅を感じる弁当を
昭和63(1988)年、妙心寺の台所で修業した主人が開店。五味、五法、五色の精進料理が、誰でも気軽に味わえる。京野菜など、滋味あふれる季節の美味に心までほっこり。
提供元:昭文社




JR嵯峨野線花園駅から徒歩5分
山内に46もの塔頭寺院を有する
花園法皇の離宮を禅寺に改めて創建。全国に約3400もの末寺を持つ臨済宗妙心寺派の大本山。北門のある一条通から南門のある下立売通までの間、約600m。30万平方メートルにも及ぶ広大な寺域を誇る。織田信長や豊臣秀吉ら戦国大名の庇護を受けて栄えた。境内には見どころが多く、狩野探幽の法堂天井画『八方にらみの龍』は必見。方丈庭園は名勝・史跡に指定されている。
提供元:昭文社



嵐電北野線御室仁和寺駅から徒歩3分
ふわりと香る絶品桜スイーツ
仁和寺山門前にある茶店。古風な外観とは似合わずポップな曲が流れる店内で、一杯ずつ挽きたてを出すオリジナルブレンドのコーヒーと団子などの甘味が楽しめる。
提供元:昭文社