101号室

写真を見る
5.8万円 (共益費 4,000円)
- 敷
- -
- 礼
- 0.5ヶ月
- 保
- -
- 償
- -
公開
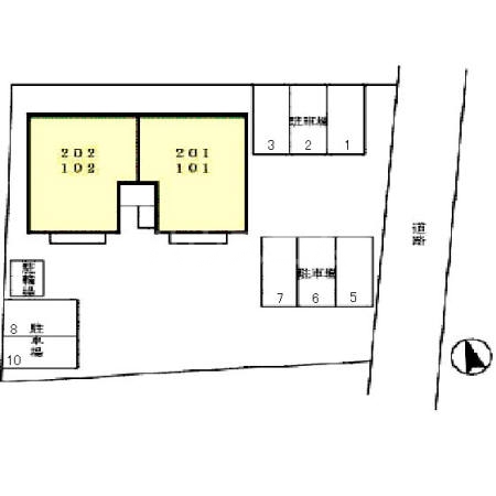
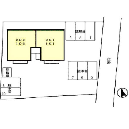
アルカディアは、群馬県太田市新田小金井町にある2階建の賃貸アパートです。築年月は、2007年9月で現在築19年になります。最寄り駅の東武スカイツリーライン・伊勢崎線・大師線太田駅からバスで24分、小金井から徒歩4分です。
この建物に5件の情報更新日:
取り扱う不動産会社・店舗が3社、募集中の部屋が5部屋あります。

写真を見る















5.8万円 (共益費 4,000円)
公開

写真を見る















5.8万円 (共益費 4,000円)
公開

写真を見る













6.1万円 (共益費 4,000円)
公開

写真を見る













6.1万円 (共益費 4,000円)
公開

写真を見る













6.1万円 (共益費 4,000円)
公開
掲載履歴とは、過去に掲載された時点の情報を履歴として一覧にまとめたものです。
※最終的な成約賃料とは異なる場合があります。また、将来の募集賃料を保証するものではありません。




JR上越新幹線熊谷駅から朝日バス太田駅・西小泉駅・妻沼聖天前行きで25分、妻沼聖天前下車すぐ
250年の時を経て復活した彫刻
日本三大聖天の一つ。古来より縁結びの神様として厚い信仰を集めている。「埼玉日光」の別名もある本殿は豪壮な彫刻が施されている。
提供元:昭文社

JR上越新幹線熊谷駅から朝日バス太田駅・西小泉駅行きで25分、東岡下車すぐ
妻沼3大いなり寿しのひとつ
揚げがジューシーで、甘さと酸味のバランスがいい。のり巻き寿司が入ったパックと、いなり寿司のみのパックがある。
提供元:昭文社

JR上越新幹線熊谷駅から朝日バス太田駅・西小泉駅・妻沼聖天前行きで25分、妻沼聖天前下車すぐ
細長い形が特徴のいなり寿し
甘辛く煮付けられた揚げと、ややきつめに酢を効かせたご飯がよく合い、さっぱりと食べることができる。おみやげにもおすすめ。
提供元:昭文社