201号室

写真を見る
7.5万円 (共益費 5,500円)
- 敷
- -
- 礼
- 75,000円
- 保
- -
- 償
- -
公開
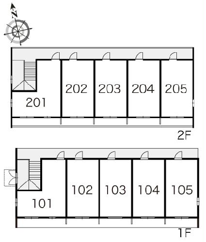
レオパレスルネッサは、神奈川県横浜市青葉区藤が丘にある2階建の賃貸アパートです。築年月は、1997年10月で現在築29年になります。最寄り駅の東急田園都市線藤が丘駅から徒歩8分です。
この建物に4件の情報更新日:
取り扱う不動産会社・店舗が4社、募集中の部屋が4部屋あります。

写真を見る













7.5万円 (共益費 5,500円)
公開

写真を見る













7.5万円 (共益費 5,500円)
公開

写真を見る













7.5万円 (共益費 5,500円)
公開

写真を見る













7.5万円 (共益費 5,500円)
公開

東急田園都市線青葉台駅から徒歩10分
ふんわりした色味のよい天然酵母や惣菜パンなどが豊富に並ぶ
色とりどりのフルーツを使って、パンのふくらみや色にこだわっているパン屋。また、天然酵母パンや惣菜パンなど種類も豊富で、食事としても満足できるボリュームだ。
提供元:昭文社




東急田園都市線青葉台駅から徒歩7分
翌日も風味が落ちないおいしいパンを販売。イートイン可能
店内のパンは翌日まで風味が落ちないのも魅力。人気のバターロールやフランスパンは毎日購入する人も少なくない。15席の禁煙スペースでは、焼きたてのパンをいただける。
提供元:昭文社


東急田園都市線市が尾駅から東急バス桐蔭学園方面行きで5分、水道局青葉事務所前下車すぐ
3基の古墳が残る史跡
以前は10基の古墳があったが、開発などにより現在は前方後方墳1基と方墳2基のみとなっている。公園のように整備され公開している。出土品は横浜市歴史博物館に展示公開されている。
提供元:昭文社