***号室

9万円 (共益費 -)
- 敷
- 1ヶ月
- 礼
- -
- 保
- -
- 償
- -
公開
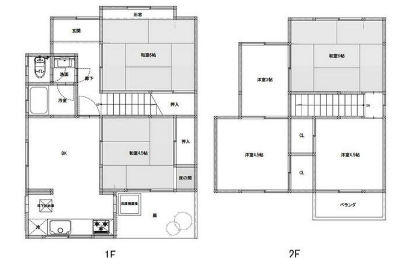
壬生中川町貸家は、京都府京都市中京区壬生中川町にある2階建の賃貸一戸建てです。築年月は、1974年8月で現在築52年になります。最寄り駅の山陰本線二条駅から徒歩11分です。
この建物に3件の情報更新日:
30代 / 男性 / 元住人
近くに産婦人科、小児科の足立病院があり、それ以外にも多くの病院があります。こどもみらい館という、子供の遊び場や児童書の図書館を持つ施設があります。また、もえぎ幼稚園は非常に評価の高い幼稚園で、御所南小学校、御池中学も近いです。浜学園などの進学塾も割と近いです。
50代 / 女性 / その他
御所南小学校という人気の公立校があるため、子どもの数がどんどん増えています。プレハブを増設したり、第二運動場を設けたりしていますが、それでも足りていない様子。ブランドを守るためにも、きちんとした受け皿の整備も急いでほしいです。
※口コミに関するお問い合わせはこちらからお願いします。



JR嵯峨野線花園駅から徒歩5分
精進料理の名店で禅を感じる弁当を
昭和63(1988)年、妙心寺の台所で修業した主人が開店。五味、五法、五色の精進料理が、誰でも気軽に味わえる。京野菜など、滋味あふれる季節の美味に心までほっこり。
提供元:昭文社




JR嵯峨野線花園駅から徒歩5分
山内に46もの塔頭寺院を有する
花園法皇の離宮を禅寺に改めて創建。全国に約3400もの末寺を持つ臨済宗妙心寺派の大本山。北門のある一条通から南門のある下立売通までの間、約600m。30万平方メートルにも及ぶ広大な寺域を誇る。織田信長や豊臣秀吉ら戦国大名の庇護を受けて栄えた。境内には見どころが多く、狩野探幽の法堂天井画『八方にらみの龍』は必見。方丈庭園は名勝・史跡に指定されている。
提供元:昭文社




京阪本線三条駅から市バス59系統山越行きで35分、竜安寺前下車すぐ
かわいい京小物をお持ち帰り
龍安寺門前にある和小物のセレクトショップ。日常に馴染む和のデザインをコンセプトに揃えられた京小物やここにしかないオリジナル商品は京都土産にも最適。
提供元:昭文社