301号室

写真を見る
6.3万円 (共益費 5,000円)
- 敷
- -
- 礼
- 1ヶ月
- 保
- -
- 償
- -
公開
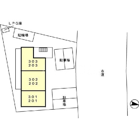
ラフィネ七光台は、千葉県野田市光葉町にある3階建の賃貸アパートです。築年月は、2007年12月で現在築19年になります。最寄り駅の東武アーバンパークライン・野田線七光台駅から徒歩2分です。
この建物に2件の情報更新日:
参考賃料 |
6.1万円~6.3万円 |
|---|---|
間取り |
1K |
空室 |
2部屋 空室を見る |
物件種別 |
賃貸アパート |
階層 |
地上3階 |
構造 |
軽量鉄骨 |
築年数 |
2007年12月(築19年) |
駐車場 |
空無し |
最寄駅 |
|
所在地 |
千葉県野田市光葉町 |
小学校学区 |
北部小学校 |
中学校学区 |
北部中学校 |
取り扱う不動産会社・店舗が2社、募集中の部屋が2部屋あります。

写真を見る




















6.3万円 (共益費 5,000円)
公開

写真を見る




















6.3万円 (共益費 5,000円)
公開
掲載履歴とは、過去に掲載された時点の情報を履歴として一覧にまとめたものです。
※最終的な成約賃料とは異なる場合があります。また、将来の募集賃料を保証するものではありません。