802号室

写真を見る
15万円 (共益費 -)
- 敷
- -
- 礼
- 2ヶ月
- 保
- -
- 償
- -
公開
リフローレ浜松中央は、静岡県浜松市中央区中央にある13階建の賃貸マンションです。築年月は、2025年1月で現在築1年になります。最寄り駅の遠州鉄道遠州病院駅から徒歩6分です。
この建物に1件の情報更新日:
参考賃料 |
12.17万円~15万円 |
|---|---|
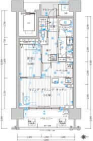
間取り |
1LDK |
空室 |
1部屋 空室を見る |
物件種別 |
賃貸マンション |
階層 |
地上13階 |
構造 |
RC |
築年数 |
2025年1月 |
駐車場 |
7,000円 |
最寄駅 |
|
所在地 |
静岡県浜松市中央区中央 |
小学校学区 |
|
中学校学区 |
取り扱う不動産会社・店舗が1社、募集中の部屋が1部屋あります。

写真を見る















15万円 (共益費 -)
公開
掲載履歴とは、過去に掲載された時点の情報を履歴として一覧にまとめたものです。
※最終的な成約賃料とは異なる場合があります。また、将来の募集賃料を保証するものではありません。
30代 / 男性 / 購入検討者
周辺の治安は大変良いと思います。近くの東小学校はとても評判の良い学校のようですし、一軒家も広くて管理が行き届いているところが多いです。景観地区とのことで道などもきれいに整備されており、安全です。夜間も物騒に感じた事はありません。
40代 / 男性 / 住人
内科、歯科、ともに、徒歩ですぐのところにあり、特に歯科は評判の良い医院がある。学校もすぐそばにある(小学校)。
※口コミに関するお問い合わせはこちらからお願いします。


