202号室

写真を見る
5.7万円 (共益費 5,000円)
- 敷
- -
- 礼
- -
- 保
- -
- 償
- -
公開
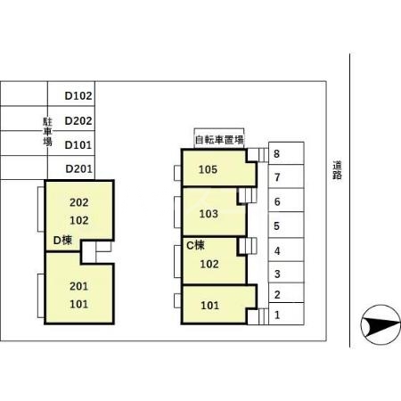
アネックス河尻 Dは、愛知県豊川市市田町にある2階建の賃貸アパートです。築年月は、2001年7月で現在築25年になります。最寄り駅の名鉄豊川線八幡駅から徒歩20分です。
この建物に2件の情報更新日:
60代以上 / 女性 / 周辺住人
問題ないと思います。この町や地域は基本人柄がよくないと住めないっていうか真面目というか常識人です。田舎。変な人はいません。
40代 / 男性 / 元住人
危ないところはなかったと記憶している。地域自体が平和なので、事件が起きたことなど皆無だった。 周辺の街灯が少ないのは不安。
※口コミに関するお問い合わせはこちらからお願いします。




豊橋鉄道渥美線柳生橋駅からすぐ
器の底に“とろろ”と“ごはん”が待機
昭和33(1958)年創業の麺処。小麦は愛知県産「きぬあかり」など国産素材にこだわり使用している。麺は歯切れの良いシコシコ麺で、仕込み水にはまろやかな電子水を使用しているためのどごしも抜群。
提供元:昭文社

JR東海道新幹線豊橋駅から徒歩13分
郷土料理の菜めし田楽
名物の田楽は、自家製豆腐に味付けをしたまろやかな八丁みそをのせ、さらにピリッと辛いカラシで味を引き締めている。冬期は粟ぜんざいもある。
提供元:昭文社




JR東海道新幹線豊橋駅から豊鉄市内線運動公園前・赤岩口行きで9分、豊橋公園前下車、徒歩5分
愛知県下最古の木造聖堂
大正2(1913)年に建築された、愛知県内の最古の正教会であるハリストス教会。ビザンチン様式の教会で、ドーム形の外観も美しい。国の重要文化財に指定されている。
提供元:昭文社