102号室

写真を見る
6万円 (共益費 3,500円)
- 敷
- -
- 礼
- 1ヶ月
- 保
- -
- 償
- -
公開
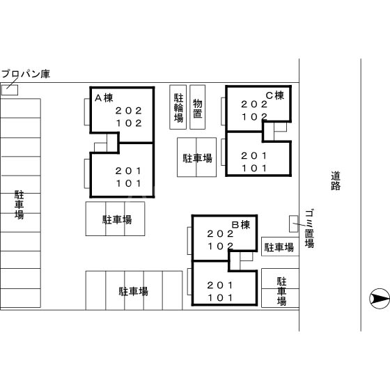
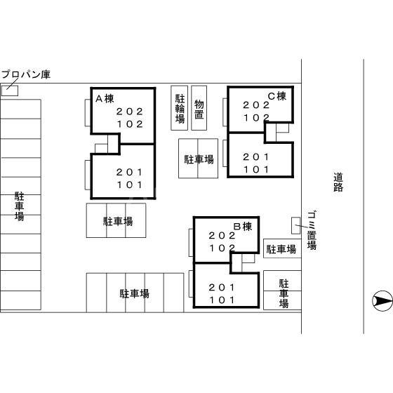
エスポワール ルナ Bは、栃木県真岡市長田にある2階建の賃貸アパートです。築年月は、2008年1月で現在築19年になります。最寄り駅の真岡鉄道真岡駅からバスで20分、真岡工業団地から徒歩15分です。
この建物に3件の情報更新日:
取り扱う不動産会社・店舗が3社、募集中の部屋が3部屋あります。

写真を見る

















6万円 (共益費 3,500円)
公開

写真を見る

















6万円 (共益費 3,500円)
公開

写真を見る

















6万円 (共益費 3,500円)
公開
掲載履歴とは、過去に掲載された時点の情報を履歴として一覧にまとめたものです。
※最終的な成約賃料とは異なる場合があります。また、将来の募集賃料を保証するものではありません。
20代 / 男性 / 元住人
スーパーや生活量販店の数が少ないのが不便だった。また、飲食店も少なく、外食を楽しむのにも限界があった。
30代 / 女性 / 元住人
・街灯が少ない ・地域の特性上工業地帯でやんちゃな車が目立つ。 ・そもそも夜歩いている人が少ないエリアではあるが、コンビニに上記のようながいることは多い
※口コミに関するお問い合わせはこちらからお願いします。