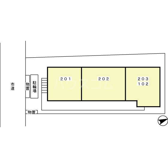
202号室

写真を見る
7.5万円 (共益費 4,500円)
- 敷
- -
- 礼
- 1ヶ月
- 保
- -
- 償
- -
公開
トロワ・エトワールは、神奈川県小田原市栄町にある2階建の賃貸アパートです。築年月は、2006年11月で現在築19年になります。最寄り駅の伊豆箱根鉄道大雄山線緑町駅から徒歩6分です。
この建物に1件の情報更新日:
参考賃料 |
7.5万円 |
|---|---|
間取り |
1LDK |
空室 |
1部屋 空室を見る |
物件種別 |
賃貸アパート |
階層 |
地上2階 |
構造 |
軽量鉄骨 |
築年数 |
2006年11月(築19年) |
駐車場 |
13,000円 |
最寄駅 |
|
所在地 |
神奈川県小田原市栄町 |
小学校学区 |
新玉小学校 |
中学校学区 |
白鴎中学校 |
40代 / 女性 / その他
ラスカ、ハルネ、ミナカと雨に濡れずに(傘いらず)買い物ができます。小田原は美味しい飲食店が多数あるので、どこで食べるか楽しみです。
20代 / 女性 / その他
コンビニ、薬局、飲食店(ファミレス、カフェ、パン屋)いくつか大きい道路沿いにあるので、その点は不便ではないと思います。大きなスーパーが近くにあると更に良さそうです。
※口コミに関するお問い合わせはこちらからお願いします。




小田原駅から徒歩10分
「難攻不落の城」でタイムトリップ気分
昭和35(1960)年に復興された小田原市のシンボル・天守閣や、本丸広場を中心に整備された公園。約300本のサクラ(3月下旬~4月上旬)や、約10000株ものハナショウブ(5月下旬~6月上旬)など、花の名所としても知られる。
提供元:昭文社


JR東海道新幹線小田原駅から徒歩7分
文化財の店内で本格日本料理を
明治26(1893)年に創業した老舗日本料理店。大正ロマン漂う重厚な建物は、国登録文化財に指定されているものだ。地魚を使った刺身や寿司など、伝統の味を楽しむことができる。
提供元:昭文社




JR東海道新幹線小田原駅から徒歩20分
小田原名物のおでんを日本家屋でいただく
小田原名物として知られる小田原おでん専門店。古民家を改装した落ち着いた店内では、約45種類にも及ぶ野菜や自家製練り物のおでん種のほか、寿司なども楽しめる。
提供元:昭文社