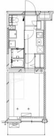
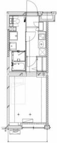
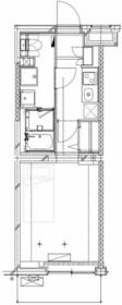
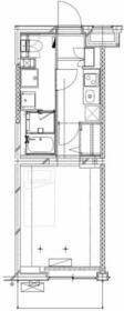
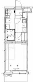
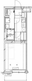
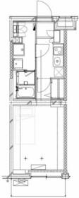
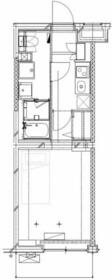
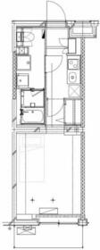
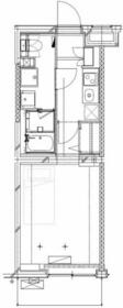
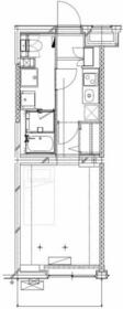
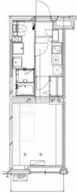
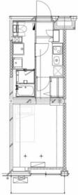
賃貸アパート
- 所在地
- 神奈川県川崎市高津区梶ケ谷
- 最寄駅
-
- 東急田園都市線 梶が谷駅 (徒歩11分)
- 東急田園都市線 宮崎台駅 (徒歩23分)
- 築年月
- 2026年3月
- 構造
- 木造
- 階数
- 地上2階

写真を見る
- 敷
- 1ヶ月
- 礼
- 1ヶ月
- 保
- -
- 償
- 1ヶ月
公開
川崎市高津区の賃貸物件[マンション・アパート・戸建]4,448件、建物291件掲載中。物件更新日:2026年01月24日は299件更新。
賃貸アパート


写真を見る
公開
条件を絞り込みませんか?




東急大井町線等々力駅から徒歩3分
東京都指定の名勝地
武蔵野台地の南端を谷沢川が浸食することによってできた等々力渓谷。渓谷周辺の河川と斜面地は世田谷区立の公園として整備されている。散策道には史跡や茶屋もある。
提供元:昭文社

JR南武線武蔵溝ノ口駅から徒歩15分
光触媒技術の応用製品やデモ実験機、展示を通じて光触媒を学ぶ
光触媒の原材料である酸化チタンや、タイルなどの光触媒応用製品、デモ実験機や屋外展示などを通じて、光触媒技術を楽しみながら理解できる展示室。
提供元:昭文社


JR南武線武蔵溝ノ口駅からすぐ
駅間近の立地で都内へのアクセスも良好
高いクオリティの客室が自慢のホテル。シングルはセミダブルベッドを使用し、バスもゆったりつかれる広さで、くつろぐには十分な配慮。
提供元:昭文社
60代以上 / 男性 / 住人
お買い物・飲食
スーパーが2軒あって非常に便利です。薬局はナカヤマがありますし、ちょっと足をのばせば、HACドラッグにクリエイトがあって日常の買い物には不自由しません。居酒屋とか食事できるお店も、駅の規模の割にはいろいろとあると思います。ステーキ屋さんと最近できた焼き鳥屋さんがお気に入りです。 焼き鳥屋さんはラーメン屋さんに変わりました。
40代 / 女性 / 住人
自然環境
駅近辺の自然環境はいいわけではないが、少し足を伸ばせば、多摩川の河川敷や東高根森林公園にも行ける。また二ヵ領用水沿いにはしだれ桜の並木があり、毎年春には大勢の人が川沿いを散歩をしている。
※口コミに関するお問い合わせはこちらからお願いします。
似た条件でさらに探す
ライフステージ
室内設備
こだわり
趣味
バルコニー
入居条件
収納
インフラ
バス・トイレ
建物設備
玄関
位置・立地
キッチン
お得な条件
トレンド