壬生西土居ノ内町の2026/02築の賃貸マンション
賃貸マンション
- 所在地
- 京都府京都市中京区壬生西土居ノ内町
- 最寄駅
-
- 阪急京都線 西院駅 (徒歩3分)
- 嵐電(京福電鉄)嵐山本線 西院駅 (徒歩2分)
- 築年月
- 2026年2月
- 構造
- RC
- 階数
- 地上7階
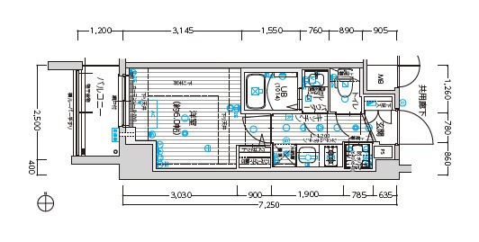
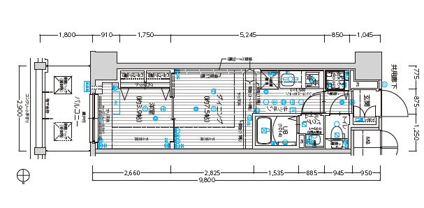
***号室

写真を見る
10.9万円(共益費 10,000円)
- 敷
- -
- 礼
- -
- 保
- -
- 償
- -
公開
