リーガル京都二条城前
賃貸マンション
- 所在地
- 京都府京都市中京区織物屋町
- 最寄駅
-
- 京都市営地下鉄 東西線 二条駅 (徒歩10分)
- 京都市営地下鉄 烏丸線 烏丸御池駅 (徒歩13分)
- 築年月
- 2021年8月
- 構造
- RC
- 階数
- 地上4階
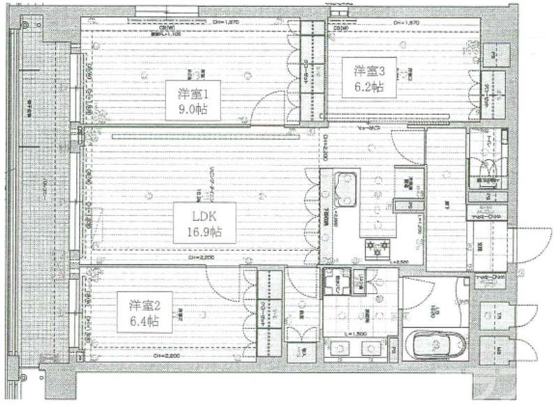
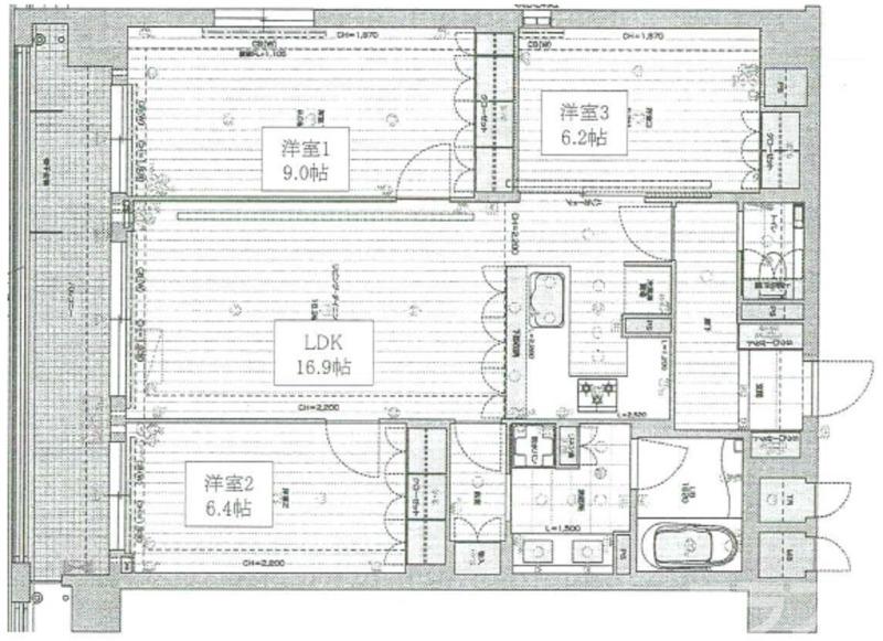
401号室

写真を見る
25万円(共益費 23,430円)
- 敷
- -
- 礼
- 500,000円
- 保
- -
- 償
- -
公開











