De machi maison
賃貸一戸建て
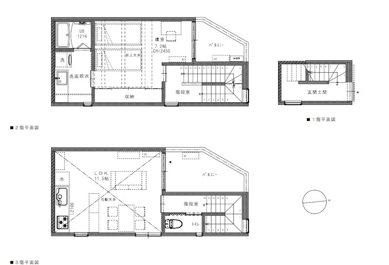
- 所在地
- 京都府京都市左京区田中関田町
- 最寄駅
-
- 京阪鴨東線 出町柳駅 (徒歩3分)
- 叡山電車 出町柳駅 (徒歩5分)
- 築年月
- 2024年9月
- 構造
- 木造
- 階数
- 地上3階
***号室

写真を見る
15.3万円(共益費 4,000円)
- 敷
- 1ヶ月
- 礼
- 1.5ヶ月
- 保
- -
- 償
- -
公開
