都島区中野町ヘーベルメゾン
賃貸マンション
- 所在地
- 大阪府大阪市都島区中野町
- 最寄駅
-
- 大阪メトロ 長堀鶴見緑地線 京橋駅 (徒歩8分)
- 大阪環状線 京橋駅 (徒歩10分)
- 築年月
- 2026年5月
- 構造
- 鉄骨造
- 階数
- 地上4階
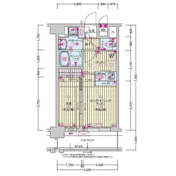
101号室

写真を見る
8.4万円(共益費 12,000円)
- 敷
- 45,000円
- 礼
- 1ヶ月
- 保
- -
- 償
- -
公開
