クレイノKOWA 104号室(1階/1K)の賃貸物件(賃貸マンション)
愛知県名古屋市中村区にあるクレイノKOWA 104号室はバス・トイレ別、温水洗浄便座、オートロック、ルーフバルコニー、1階などが特徴です。最寄り駅の名古屋市営地下鉄 東山線中村公園駅から徒歩4分です。クレイノKOWA 104号室の詳細はハウスコム 中村公園店までお気軽にお問い合わせください!
情報更新日:
次回更新予定日:
※次回更新予定日について:お店側では順次空室確認を行っていますが、次回更新予定日までに空室確認が行えない場合には、この物件情報は自動的に削除されます。
クレイノKOWA 104号室の賃貸物件部屋概要
家賃 |
7.3万円
初期費用を |
|---|---|
共益費 |
5,500円
入居可能時期 |
敷金/礼金 |
- / 73,000円 |
保証金/ |
- / - |
最寄駅 |
|
所在地 |
愛知県名古屋市中村区乾出町 |
部屋番号 |
104号室 |
間取り |
1K |
専有面積 |
22.11㎡ |
築年数 |
2018年8月(築8年) |
階数 |
1階部分(地上3階建) |
方位・位置 |
ー / その他 |
物件種別 |
賃貸マンション |
構造 |
鉄骨造 |
駐車場 |
無 |
小学校学区 |
千成小学校 |
中学校学区 |
豊国中学校 |
他の空き部屋 |
202号室 |
- 学区データについて
- ※学区データは必ずしも正確とは限りません。詳細に関しては最寄店舗または各自治体の教育委員会に必ずご確認ください。
クレイノKOWA 104号室の特徴
契約条件
敷金が無料なため、初期費用が比較的安くなる傾向にあります。
セキュリティ
この物件の建物には、オートロックが設置されており、来客時には居室内のテレビモニターにて訪問者の顔を確認することができます。
室内設備
トイレは、温水洗浄便座機能付きになります。 女性に嬉しい設備の独立した洗面化粧台があります。 洗濯に便利な設備として、室内洗濯機置場があります。
居室状況
エアコンが設置されています。 家具が備え付けられており、入居後すぐ生活が始められます。
建物設備共用部分
居室外の専有スペースとして、洗濯物を干すなどの用途として利用できるバルコニーがあります。
周辺施設
この物件の学区は、千成小学校区・豊国中学校区です。
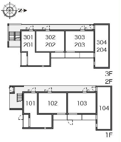
クレイノKOWA 104号室の間取り
間取り:1K
間取詳細:1K
専有面積:22.11㎡
方位:ー
部屋位置:その他
クレイノKOWA 104号室の設備
バス・トイレ
バス・トイレ別
温水洗浄便座
独立洗面台
玄関
TVモニタ付インターホン
オートロック
バルコニー
バルコニー
ルーフバルコニー
室内設備
エアコン
室内洗濯機置場
家具付
位置・立地
1階
ライフステージ
一人暮らしに人気の設備
カップルに人気の設備
家族に人気の設備
夫婦に人気の設備
三世代で人気の設備
こだわり
外で子どもと遊びたい
雨の日でも洗濯したい
趣味
ガーデニングが好き
クレイノKOWA 104号室の賃貸契約情報
毎月支払う |
家賃7.3万円/月共益費5,500円/月 |
|---|---|
初期費用 |
敷金-礼金73,000円保証金-敷引き償却金- |
更新料 |
- |
鍵交換費用 |
16,500円 |
室内清掃費用 |
41,800円 |
抗菌施工(任意) |
23,760円 |
駐車場料金 |
無 |
損保・ |
借家賠付きの火災保険にご加入いただきます。 |
保証会社 |
加入要 保証会社利用料:保証料:75590円(契約内容により100~120%で変動有)※記載金額は120%の場合 |
契約期間 |
- |
入居可能日 |
即入居可 |
フリーレント期間 |
- |
取引形態 |
一般媒介 |
備考 |
鍵交換費10450円、抗菌施工(任意)18040円から23760円(税込)、環境維持費540円/月 |
クレイノKOWA 104号室の建物情報
建物名称 |
クレイノKOWA |
|---|---|
最寄駅 |
|
所在地 |
愛知県名古屋市中村区乾出町 |
階層 |
1階部分(地上3階建) |
構造 |
鉄骨造 |
築年数 |
2018年8月(築8年) |
駐車場 |
無 |
小学校学区 |
千成小学校 |
中学校学区 |
豊国中学校 |
- 学区データについて
- ※学区データは必ずしも正確とは限りません。詳細に関しては最寄店舗または各自治体の教育委員会に必ずご確認ください。
無料この物件に問い合わせ
- クレイノKOWA 104号室

-
7.3万円
(共益費
5,500円)
- 敷
- -
- 礼
- 73,000円
- 保
- -
- 償
- -
クレイノKOWA 104号室の物件のお問い合わせ先・取り扱い店舗
ハウスコム 中村公園店
- アクセス
-
名古屋市営地下鉄 東山線「中村公園駅」徒歩1分
- 住所
- 〒453-0811 愛知県名古屋市中村区太閤通9丁目9 横田ビル 1階
- 営業時間
- 10:00~18:00
- 定休日
- なし(年末年始休業12月25日~1月3日)
- 営業エリア
- 中村区 中川区 西区 中区 港区 海部郡 あま市 清須市
- 取引態様
- 賃貸仲介業

























