パークアクシス豊洲 2017号室(20階/2LDK)の賃貸物件(賃貸マンション)
東京都江東区にあるパークアクシス豊洲 2017号室はIHコンロ、TVモニタ付インターホン、エアコン、BS、ペット可・相談などが特徴です。最寄り駅の東京メトロ 有楽町線豊洲駅から徒歩8分です。パークアクシス豊洲 2017号室の詳細はハウスコム 押上店までお気軽にお問い合わせください!
情報更新日:
次回更新予定日:
※次回更新予定日について:お店側では順次空室確認を行っていますが、次回更新予定日までに空室確認が行えない場合には、この物件情報は自動的に削除されます。
パークアクシス豊洲 2017号室の賃貸物件部屋概要
家賃 |
32万円
初期費用を |
|---|---|
共益費 |
10,000円
入居可能時期 |
敷金/礼金 |
1ヶ月 / 1ヶ月 |
保証金/ |
- / - |
最寄駅 |
|
所在地 |
東京都江東区豊洲 |
部屋番号 |
2017号室 |
間取り |
2LDK |
専有面積 |
65.55㎡ |
築年数 |
2008年3月(築19年) |
階数 |
20階部分(地上20階地下1階建) |
方位・位置 |
北西 / その他 |
物件種別 |
賃貸マンション |
構造 |
RC |
駐車場 |
27,500円 |
小学校学区 |
豊洲北小学校 |
中学校学区 |
深川第五中学校 |
他の空き部屋 |
1102号室 1414号室 1417号室 1701号室 409号室 ***号室 517号室 606号室 706号室 911号室 921号室 |
- 学区データについて
- ※学区データは必ずしも正確とは限りません。詳細に関しては最寄店舗または各自治体の教育委員会に必ずご確認ください。
パークアクシス豊洲 2017号室の特徴
契約条件
ペットの飼育や楽器演奏もご相談ください。
セキュリティ
この物件の建物には、オートロックや宅配ボックスが設置されており、来客時には居室内のテレビモニターにて訪問者の顔を確認することができます。
室内設備
システムキッチンには、IHコンロが備え付けられています。 女性に嬉しい設備の独立した洗面化粧台があります。 洗濯に便利な設備として、室内洗濯機置場があります。浴室乾燥機も設置されているので、梅雨時の生乾き臭も比較的防ぐことができます。
居室状況
お部屋の床は、フローリングとなっており、エアコンが設置されています。
建物設備共用部分
居室外の専有スペースとして、洗濯物を干すなどの用途として利用できるバルコニーがあります。 建物の共用スペースに、日々の出入に便利なエレベーターや、急な外出や不在がちのご家庭の荷物受け取りに便利な宅配ボックスが設置されています。 バイク置き場が利用できます。
周辺施設
この物件の学区は、豊洲北小学校区・深川第五中学校区です。
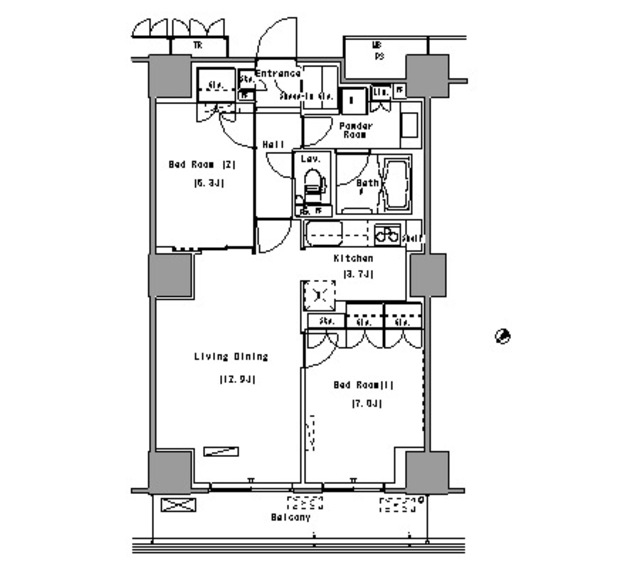
パークアクシス豊洲 2017号室の間取り
間取り:2LDK
間取詳細:2LDK
専有面積:65.55㎡
方位:北西
部屋位置:その他
パークアクシス豊洲 2017号室の設備
キッチン
システムキッチン
IHコンロ
バス・トイレ
バス・トイレ別
浴室乾燥機
独立洗面台
玄関
TVモニタ付インターホン
オートロック
宅配ボックス
バルコニー
バルコニー
ルーフバルコニー
室内設備
エアコン
フローリング
室内洗濯機置場
位置・立地
2階以上
最上階
インフラ
インターネット可
CATV
BS
CS
建物設備
エレベーター
バイク置き場
入居条件
ペット可・相談
楽器可・相談
ライフステージ
一人暮らしに人気の設備
カップルに人気の設備
家族に人気の設備
夫婦に人気の設備
三世代で人気の設備
こだわり
外で子どもと遊びたい
雨の日でも洗濯したい
洋室で暮らしたい
趣味
ガーデニングが好き
パークアクシス豊洲 2017号室の賃貸契約情報
毎月支払う |
家賃32万円/月共益費10,000円/月 |
|---|---|
初期費用 |
敷金1ヶ月 (32万円)礼金1ヶ月 (32万円)保証金-敷引き償却金- |
更新料 |
320,000円 |
鍵交換費用 |
- |
室内清掃費用 |
- |
室内清掃費 |
122,578円 |
鍵交換費 |
16,500円 |
駐車場料金 |
27,500円 |
損保・ |
借家賠付きの火災保険にご加入いただきます。 |
保証会社 |
加入要 保証会社利用料:保証会社名:レジデントアシスタンス株式会社/初回保証委託料(最低20000円):月額賃料等の50%、 2年目以降:9600円/年 |
契約期間 |
2年 |
入居可能日 |
2026年06月下旬 |
フリーレント期間 |
- |
取引形態 |
一般媒介 |
備考 |
ペット相談可(小型犬or猫2匹まで/別途管理費1,000円税込/敷金1ヶ月積み増し)/駐輪場あり(月 |
パークアクシス豊洲 2017号室の建物情報
建物名称 |
パークアクシス豊洲 |
|---|---|
最寄駅 |
|
所在地 |
東京都江東区豊洲 |
階層 |
20階部分(地上20階地下1階建) |
構造 |
RC |
築年数 |
2008年3月(築19年) |
駐車場 |
27,500円 |
小学校学区 |
豊洲北小学校 |
中学校学区 |
深川第五中学校 |
- 学区データについて
- ※学区データは必ずしも正確とは限りません。詳細に関しては最寄店舗または各自治体の教育委員会に必ずご確認ください。
無料この物件に問い合わせ
- パークアクシス豊洲 2017号室

-
32万円
(共益費
10,000円)
- 敷
- 1ヶ月
- 礼
- 1ヶ月
- 保
- -
- 償
- -
パークアクシス豊洲 2017号室の物件のお問い合わせ先・取り扱い店舗
ハウスコム 押上店
- アクセス
-
東京メトロ 半蔵門線「押上駅」B1出口徒歩1分
- 住所
- 〒130-0002 東京都墨田区業平4丁目16−2 三橋ビル 1F
- 営業時間
- 10:00~18:00
- 定休日
- 水曜日
- 営業エリア
- 墨田区・江東区・中央区・台東区・江戸川区・葛飾区・足立区・荒川区
- 取引態様
- 賃貸仲介業



























