ル・レーヴKAWANISHI ***号室(2階/1K)の賃貸物件(賃貸アパート)
兵庫県神戸市長田区にあるル・レーヴKAWANISHI ***号室はガスコンロ、追い焚き、浴室乾燥機、温水洗浄便座、シューズボックスなどが特徴です。最寄り駅の神戸高速鉄道東西線高速長田駅から徒歩8分です。ル・レーヴKAWANISHI ***号室の詳細はクラスモ FCJR須磨駅前店までお気軽にお問い合わせください!
情報更新日:
次回更新予定日:
※次回更新予定日について:お店側では順次空室確認を行っていますが、次回更新予定日までに空室確認が行えない場合には、この物件情報は自動的に削除されます。
ル・レーヴKAWANISHI ***号室の賃貸物件部屋概要
家賃 |
5.6万円
初期費用を |
|---|---|
共益費 |
4,000円
入居可能時期 |
敷金/礼金 |
- / - |
保証金/ |
- / - |
最寄駅 |
|
所在地 |
兵庫県神戸市長田区川西通 |
部屋番号 |
***号室 |
間取り |
1K(洋7・K0) |
専有面積 |
22.93㎡ |
築年数 |
2018年12月(築7年) |
階数 |
2階部分(地上3階建) |
方位・位置 |
北東 / その他 |
物件種別 |
賃貸アパート |
構造 |
木造 |
駐車場 |
無 |
小学校学区 |
長田南小学校 |
中学校学区 |
長田中学校 |
他の空き部屋 |
ー |
- 学区データについて
- ※学区データは必ずしも正確とは限りません。詳細に関しては最寄店舗または各自治体の教育委員会に必ずご確認ください。
ル・レーヴKAWANISHI ***号室の特徴
契約条件
ご契約時に保証人は不要です。 敷金と礼金が無料なため、初期費用が比較的安くなる傾向にあります。 お支払いは、初期費用がクレジットカードにて決済できます。
セキュリティ
来客時には居室内のテレビモニターにて訪問者の顔を確認することができます。
室内設備
システムキッチンには、2つ以上のガスコンロが備え付けられています。 お風呂とトイレは別です。お風呂には、追い焚き機能が備わっています。 トイレは、温水洗浄便座機能付きになります。 洗濯に便利な設備として、室内洗濯機置場があり、室内物干機で室内干しがしやすい環境になります。浴室乾燥機も設置されているので、梅雨時の生乾き臭も比較的防ぐことができます。
居室状況
お部屋の床は、全居室フローリングとなっており、エアコンが設置されています。 照明器具が備え付けられており、インターネットも無料で入居後すぐ生活が始められます。 収納スペースとして、通常よりも収納力の高いウォークインクローゼット、玄関にはシューズボックスがあります。
建物設備共用部分
居室外の専有スペースとして、洗濯物を干すなどの用途として利用できるバルコニーがあります。
周辺施設
この物件の学区は、長田南小学校区・長田中学校区です。近くには、徒歩7分(499m)でドラッグストアがあります。
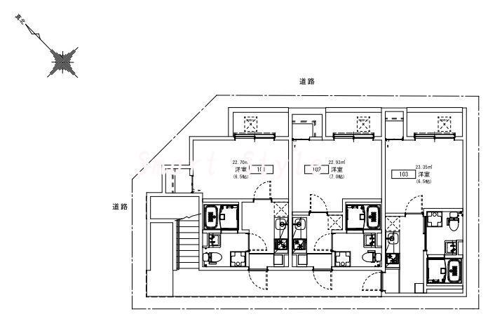
ル・レーヴKAWANISHI ***号室の間取り
間取り:1K
間取詳細:1K(洋7・K0)
専有面積:22.93㎡
方位:北東
部屋位置:その他
ル・レーヴKAWANISHI ***号室の設備
キッチン
システムキッチン
ガスコンロ
ガスコンロ二口以上
バス・トイレ
バス・トイレ別
追い焚き
浴室乾燥機
温水洗浄便座
玄関
TVモニタ付インターホン
収納
ウォークインクローゼット
シューズボックス
バルコニー
バルコニー
室内設備
エアコン
フローリング
全居室フローリング
室内洗濯機置場
照明器具付
室内物干機
デザイナーズ
位置・立地
2階以上
インフラ
インターネット可
プロパンガス
入居条件
保証人不要
即入居可
ライフステージ
一人暮らしに人気の設備
カップルに人気の設備
家族に人気の設備
夫婦に人気の設備
三世代で人気の設備
こだわり
雨の日でも洗濯したい
室内で洗濯物を乾かしたい
洋室で暮らしたい
趣味
服やおしゃれが好き
お得な条件
インターネット無料
初期費用カード決済可
ル・レーヴKAWANISHI ***号室の賃貸契約情報
毎月支払う |
家賃5.6万円/月共益費4,000円/月 |
|---|---|
初期費用 |
敷金-礼金-保証金-敷引き償却金- |
更新料 |
- |
鍵交換費用 |
33,000円 |
室内清掃費用 |
55,000円 |
町内会費 |
0円 |
水道料 |
0円 |
入居者アプリ設定料 |
16,500円 |
駐車場料金 |
無 |
損保・ |
借家賠付きの火災保険にご加入いただきます。 |
保証会社 |
加入要 保証会社:管理会社指定 保証会社利用料:初回契約時:100% |
契約期間 |
2年 |
入居可能日 |
即入居可 |
フリーレント期間 |
- |
取引形態 |
仲介 |
備考 |
- |
ル・レーヴKAWANISHI ***号室の建物情報
建物名称 |
ル・レーヴKAWANISHI |
|---|---|
最寄駅 |
|
所在地 |
兵庫県神戸市長田区川西通 |
階層 |
2階部分(地上3階建) |
構造 |
木造 |
築年数 |
2018年12月(築7年) |
駐車場 |
無 |
小学校学区 |
長田南小学校 |
中学校学区 |
長田中学校 |
- 学区データについて
- ※学区データは必ずしも正確とは限りません。詳細に関しては最寄店舗または各自治体の教育委員会に必ずご確認ください。
無料この物件に問い合わせ
- ル・レーヴKAWANISHI ***号室

-
5.6万円
(共益費
4,000円)
- 敷
- -
- 礼
- -
- 保
- -
- 償
- -
ル・レーヴKAWANISHI ***号室の物件のお問い合わせ先・取り扱い店舗
クラスモ FCJR須磨駅前店
- アクセス
-
山陽本線(JR西日本)「須磨駅」徒歩1分
山陽電車本線「山陽須磨駅」徒歩1分
- 住所
- 〒654-0055 兵庫県神戸市須磨区須磨浦通4丁目3-13
- 営業時間
- 10:00~19:00
- 定休日
- 水曜日
- 営業エリア
- 明石市 神戸市(垂水区・須磨区・長田区・兵庫区・中央区・灘区・東灘区)
- 取引態様
- 賃貸仲介業・物件売買業・FC店

































