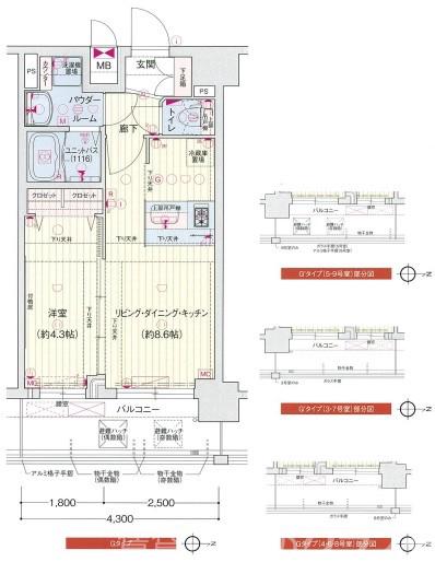
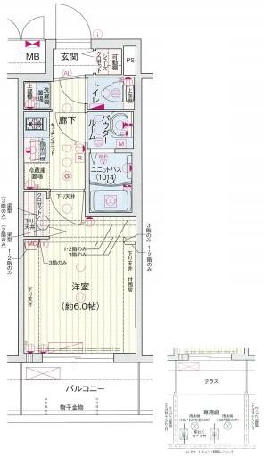
103号室

写真を見る
6.87万円 (共益費 6,300円)
- 敷
- -
- 礼
- 80,000円
- 保
- -
- 償
- -
公開
プレサンスTHE KYOTO彩美は、京都府京都市南区東九条西明田町にある7階建の賃貸マンションです。築年月は、2020年1月で現在築6年になります。最寄り駅の京都市営地下鉄 烏丸線九条駅から徒歩5分です。
この建物に4件の情報更新日:
参考賃料 |
6.17万円~8.67万円 |
|---|---|
間取り |
1K~1LDK |
空室 |
4部屋 空室を見る |
物件種別 |
賃貸マンション |
階層 |
地上7階 |
構造 |
RC |
築年数 |
2020年1月(築6年) |
駐車場 |
空無し |
最寄駅 |
|
所在地 |
京都府京都市南区東九条西明田町 |
小学校学区 |
凌風小中学校 |
中学校学区 |
凌風小中学校 |
取り扱う不動産会社・店舗が1社、募集中の部屋が4部屋あります。

写真を見る




























6.87万円 (共益費 6,300円)
公開

写真を見る




























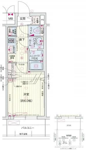
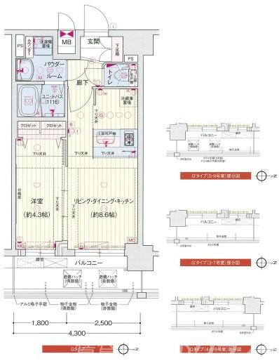
8.47万円 (共益費 11,300円)
公開

写真を見る




























8.67万円 (共益費 11,300円)
公開

写真を見る




























8.62万円 (共益費 11,300円)
公開
掲載履歴とは、過去に掲載された時点の情報を履歴として一覧にまとめたものです。
※最終的な成約賃料とは異なる場合があります。また、将来の募集賃料を保証するものではありません。

JR京都駅から京都バス73系苔寺すず虫寺行きで1時間、終点下車、徒歩3分
絨毯を敷いた様に見える苔の庭
「苔寺」の名で有名。夢窓疎石による作庭で、上段の枯山水、下段の池泉回遊式庭園の2段に分かれている。梅雨の時期は130種以上の苔が緑に輝き特に美しい。
提供元:昭文社



阪急嵐山線松尾大社駅から徒歩15分
鈴虫の声とともに幸福を届ける
大日如来を本尊とする臨済宗の寺院。良縁開運祈願の寺として有名。堂内で鈴虫を飼っていて、一年中涼やかな鳴き声が聞こえることから「鈴虫寺」と呼ばれている。
提供元:昭文社



阪急嵐山線上桂駅から徒歩20分
見事な苔の庭園が有名
臨済宗の寺院。池泉回遊式庭園は京都屈指の名庭で、一面が苔で覆われたその様子から苔寺の名で親しまれている。拝観は申込制。世界遺産に登録されている。
提供元:昭文社