1号室

写真を見る
13万円 (共益費 -)
- 敷
- 1ヶ月
- 礼
- 1ヶ月
- 保
- -
- 償
- -
公開
グランソフィア西町は、埼玉県さいたま市岩槻区西町にある2階建の賃貸一戸建てです。築年月は、2020年3月で現在築6年になります。最寄り駅の東武アーバンパークライン・野田線岩槻駅から徒歩9分です。
この建物に2件の情報更新日:
参考賃料 |
13万円 |
|---|---|
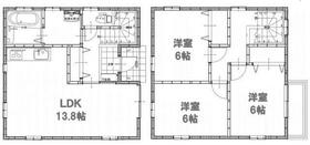
間取り |
3LDK |
空室 |
2部屋 空室を見る |
物件種別 |
賃貸一戸建て |
階層 |
地上2階 |
構造 |
木造 |
築年数 |
2020年3月(築6年) |
駐車場 |
空有 賃料に含む |
最寄駅 |
|
所在地 |
埼玉県さいたま市岩槻区西町 |
小学校学区 |
西原小学校 |
中学校学区 |
西原中学校 |
40代 / 女性 / 元住人
飲食店がいくつかあり、外食には困りません。ただし、ベビーカーでは入れない店などあるので事前確認が必要です。
40代 / 女性 / 元住人
小児科、スーパー、西松屋、コンビミニ 、しまむら生活に必要なものが全て揃います。 公園も近くにあるので、子育てもしやすいです。
※口コミに関するお問い合わせはこちらからお願いします。