***号室

8.75万円 (共益費 5,240円)
- 敷
- -
- 礼
- 1ヶ月
- 保
- -
- 償
- -
公開
東中島の完工年月(2026年1月)築の賃貸マンションは、大阪府大阪市東淀川区東中島にある9階建の賃貸マンションです。築年月は、2026年1月で現在築0年になります。最寄り駅の阪急京都線崇禅寺駅から徒歩7分です。
この建物に4件の情報更新日:
参考賃料 |
7.1万円~11.1万円 |
|---|---|
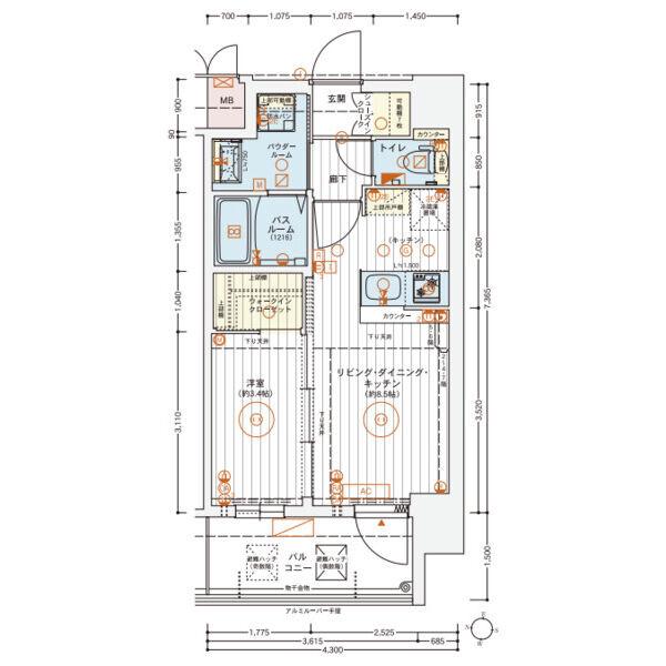
間取り |
1K~1LDK |
空室 |
4部屋 空室を見る |
物件種別 |
賃貸マンション |
階層 |
地上9階 |
構造 |
RC |
築年数 |
新築 |
駐車場 |
19,800円 |
最寄駅 |
|
所在地 |
大阪府大阪市東淀川区東中島 |
小学校学区 |
|
中学校学区 |
取り扱う不動産会社・店舗が1社、募集中の部屋が4部屋あります。

8.75万円 (共益費 5,240円)
公開

11.1万円 (共益費 6,240円)
公開

8.9万円 (共益費 5,240円)
公開

7.1万円 (共益費 4,250円)
公開
30代 / 女性 / 住人
近くにスナックや飲み屋も多いので治安がいいとは言えないです。週末は飲み屋帰りの人の大声が聞こえたりします。
30代 / 男性 / 住人
耳鼻科、歯医者なども含めて割と病院数はあるが、小さい病院しかない。大きい病気などであれば淡路やそれ以上電車で行く必要あり
※口コミに関するお問い合わせはこちらからお願いします。