101号室

写真を見る
6.3万円 (共益費 5,500円)
- 敷
- -
- 礼
- -
- 保
- -
- 償
- -
公開
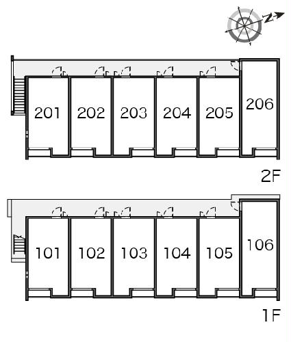
クレイノYAMAKOⅥは、愛知県名古屋市西区中小田井にある2階建の賃貸アパートです。築年月は、2019年1月で現在築7年になります。最寄り駅の名鉄犬山線中小田井駅から徒歩6分です。
この建物に6件の情報更新日:
取り扱う不動産会社・店舗が2社、募集中の部屋が6部屋あります。

写真を見る








6.3万円 (共益費 5,500円)
公開

写真を見る











6.2万円 (共益費 5,500円)
公開

写真を見る









6.2万円 (共益費 5,500円)
公開

写真を見る









6.2万円 (共益費 5,500円)
公開

写真を見る











6.2万円 (共益費 5,500円)
公開

写真を見る









6.5万円 (共益費 5,500円)
公開
20代 / 女性 / 元住人
近くに庄内緑地公園があり、ウォーキングなどに最適である。また小さい公園もたくさんあり街の環境はとても整っている。
30代 / 女性 / 元住人
mozo以外にご飯屋さん等が少なく、近所は面白みにかける。まちづくりを進めているようなので、どのような街になっていくかは期待。
※口コミに関するお問い合わせはこちらからお願いします。




JR名古屋駅から徒歩15分
美しい陶磁器と緑に癒される
陶磁器メーカー、ノリタケが発祥の地に建てた、産業観光施設。ミュージアムや工場の見学のほか、皿やマグカップに絵付け体験ができるコーナーも(受付は10~16時、体験時間は約90分。有料)。
提供元:昭文社



JR名古屋駅から徒歩5分
トレンドに敏感な女性好みの店が集結
名古屋駅から地下鉄桜通線国際センター駅までの区間に位置する地下街。働く女性をターゲットとしたレディースファッションの店をメインにリラクゼーション・グルメ等女性に人気の店がそろう。
提供元:昭文社




JR名古屋駅からすぐ
ツインタワーは名駅のシンボル
JR名古屋駅に直結したツインタワーのビル。隣のJRゲートタワーと1~15階は両館が繋がり行き来できる。12~13階のタワーズプラザ・ゲートタワープラザのレストラン街はさまざまなジャンルの約70店舗が集まった日本最大級のレストランフロア。
提供元:昭文社