306号室

写真を見る
7.124万円 (共益費 7,760円)
- 敷
- -
- 礼
- 79,000円
- 保
- -
- 償
- -
公開
ベラジオ京都鞍馬口は、京都府京都市上京区下清蔵口町にある5階建の賃貸マンションです。築年月は、2017年3月で現在築9年になります。最寄り駅の京都市営地下鉄 烏丸線鞍馬口駅から徒歩9分です。
この建物に1件の情報更新日:
参考賃料 |
7.024万円~7.124万円 |
|---|---|
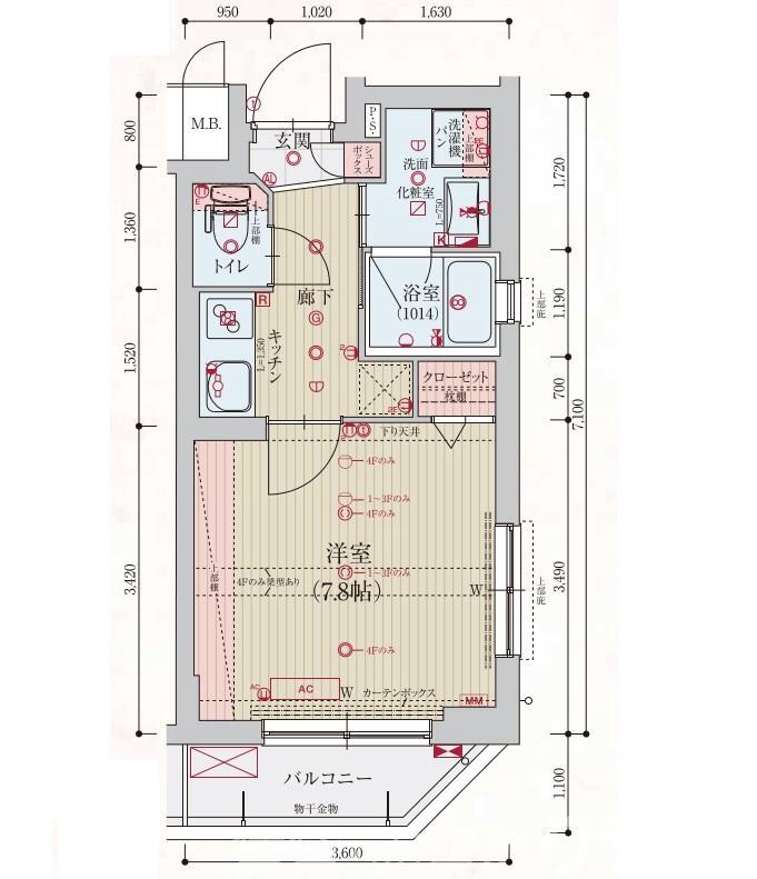
間取り |
1K |
空室 |
1部屋 空室を見る |
物件種別 |
賃貸マンション |
階層 |
地上5階 |
構造 |
RC |
築年数 |
2017年3月(築9年) |
駐車場 |
無 |
最寄駅 |
|
所在地 |
京都府京都市上京区下清蔵口町 |
小学校学区 |
室町小学校 |
中学校学区 |
烏丸中学校 |
取り扱う不動産会社・店舗が1社、募集中の部屋が1部屋あります。

写真を見る


























7.124万円 (共益費 7,760円)
公開
掲載履歴とは、過去に掲載された時点の情報を履歴として一覧にまとめたものです。
※最終的な成約賃料とは異なる場合があります。また、将来の募集賃料を保証するものではありません。
20代 / 男性 / 住人
観光客が多いため周りにホテルが多く、そのため外国人がかなり多いため、夜でも話し声がうるさいことが多いです。
40代 / 女性 / その他
人通りも多く、街灯もあるので治安は悪くはないと思います。 たまに飲んで酔っ払った人が叫んでたりはします。
※口コミに関するお問い合わせはこちらからお願いします。



JR嵯峨野線花園駅から徒歩5分
精進料理の名店で禅を感じる弁当を
昭和63(1988)年、妙心寺の台所で修業した主人が開店。五味、五法、五色の精進料理が、誰でも気軽に味わえる。京野菜など、滋味あふれる季節の美味に心までほっこり。
提供元:昭文社




JR嵯峨野線花園駅から徒歩5分
山内に46もの塔頭寺院を有する
花園法皇の離宮を禅寺に改めて創建。全国に約3400もの末寺を持つ臨済宗妙心寺派の大本山。北門のある一条通から南門のある下立売通までの間、約600m。30万平方メートルにも及ぶ広大な寺域を誇る。織田信長や豊臣秀吉ら戦国大名の庇護を受けて栄えた。境内には見どころが多く、狩野探幽の法堂天井画『八方にらみの龍』は必見。方丈庭園は名勝・史跡に指定されている。
提供元:昭文社




京阪本線三条駅から市バス59系統山越行きで35分、竜安寺前下車すぐ
かわいい京小物をお持ち帰り
龍安寺門前にある和小物のセレクトショップ。日常に馴染む和のデザインをコンセプトに揃えられた京小物やここにしかないオリジナル商品は京都土産にも最適。
提供元:昭文社