***号室

写真を見る
6.3万円 (共益費 5,000円)
- 敷
- -
- 礼
- 1ヶ月
- 保
- -
- 償
- -
公開
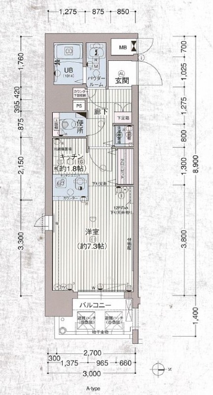
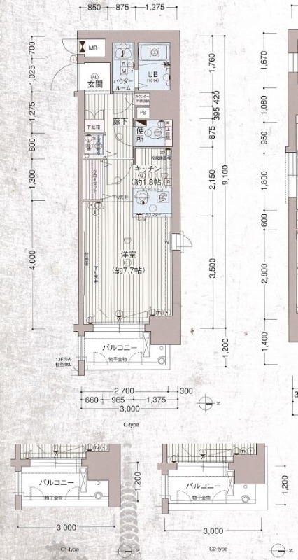
四条堀川町の完工年月(2006年2月)築の賃貸マンションは、京都府京都市下京区四条堀川町にある14階建の賃貸マンションです。築年月は、2006年2月で現在築21年になります。最寄り駅の阪急京都線大宮駅から徒歩4分です。
この建物に2件の情報更新日:
取り扱う不動産会社・店舗が1社、募集中の部屋が2部屋あります。

写真を見る




















6.3万円 (共益費 5,000円)
公開

写真を見る




6.3万円 (共益費 8,000円)
公開
掲載履歴とは、過去に掲載された時点の情報を履歴として一覧にまとめたものです。
※最終的な成約賃料とは異なる場合があります。また、将来の募集賃料を保証するものではありません。



JR嵯峨野線花園駅から徒歩5分
精進料理の名店で禅を感じる弁当を
昭和63(1988)年、妙心寺の台所で修業した主人が開店。五味、五法、五色の精進料理が、誰でも気軽に味わえる。京野菜など、滋味あふれる季節の美味に心までほっこり。
提供元:昭文社




JR嵯峨野線花園駅から徒歩5分
山内に46もの塔頭寺院を有する
花園法皇の離宮を禅寺に改めて創建。全国に約3400もの末寺を持つ臨済宗妙心寺派の大本山。北門のある一条通から南門のある下立売通までの間、約600m。30万平方メートルにも及ぶ広大な寺域を誇る。織田信長や豊臣秀吉ら戦国大名の庇護を受けて栄えた。境内には見どころが多く、狩野探幽の法堂天井画『八方にらみの龍』は必見。方丈庭園は名勝・史跡に指定されている。
提供元:昭文社



嵐電北野線御室仁和寺駅から徒歩3分
ふわりと香る絶品桜スイーツ
仁和寺山門前にある茶店。古風な外観とは似合わずポップな曲が流れる店内で、一杯ずつ挽きたてを出すオリジナルブレンドのコーヒーと団子などの甘味が楽しめる。
提供元:昭文社