***号室

写真を見る
7.3万円 (共益費 6,000円)
- 敷
- 1ヶ月
- 礼
- 1ヶ月
- 保
- -
- 償
- -
公開
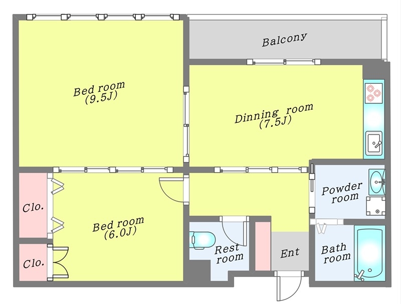
HF仙台レジデンスEASTは、宮城県仙台市宮城野区元寺小路にある12階建の賃貸マンションです。築年月は、2008年7月で現在築18年になります。最寄り駅の東北本線仙台駅から徒歩9分です。
この建物に4件の情報更新日:
取り扱う不動産会社・店舗が1社、募集中の部屋が4部屋あります。

写真を見る























7.3万円 (共益費 6,000円)
公開

写真を見る















11.3万円 (共益費 8,000円)
公開

写真を見る























6.5万円 (共益費 6,000円)
公開

写真を見る























6.9万円 (共益費 6,000円)
公開
掲載履歴とは、過去に掲載された時点の情報を履歴として一覧にまとめたものです。
※最終的な成約賃料とは異なる場合があります。また、将来の募集賃料を保証するものではありません。
30代 / 女性 / 住人
住宅が多いので夜は人通りが少ないのですが、危ない目にあったことは無いです。 大きな通りがあるのでそういった道を通れば安全かと思います。
50代 / 女性 / 元住人
周辺にスーパー、コンビニがあり便利です。飲食店もそれなりにあるので便利です。周辺はとにかく生活には困らない。 生活するにはとても便利で最高の環境です。
※口コミに関するお問い合わせはこちらからお願いします。