1号室

7.8万円 (共益費 -)
- 敷
- -
- 礼
- 1ヶ月
- 保
- -
- 償
- -
公開
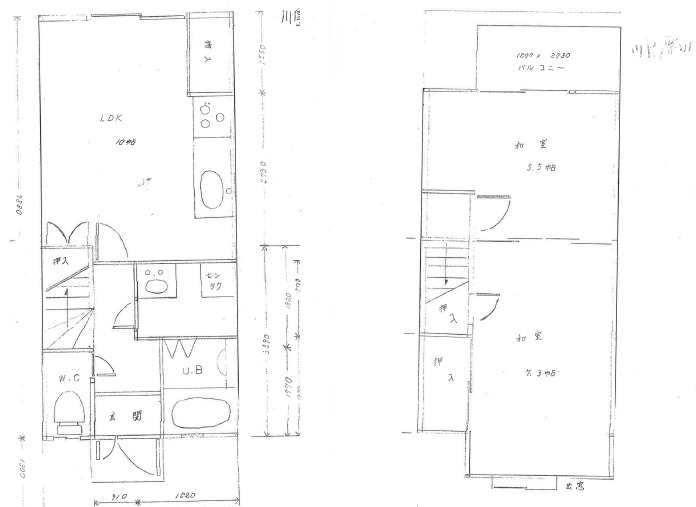
粟田町貸家は、京都府京都市西京区川島粟田町にある2階建の賃貸一戸建てです。築年月は、1968年10月で現在築58年になります。最寄り駅の阪急京都線桂駅から徒歩13分です。
この建物に2件の情報更新日:
60代以上 / 男性 / 元住人
桂川西岸の河川敷「桂川緑地離宮前公園」は、景観のために遊具などはないが、樹々と緑に癒される。ジョギングやサイクリングも可能。 東岸のほうはお花見の穴場で、桜並木と菜の花の共演が見事。
40代 / 男性 / 元住人
生鮮食品の産直市場や業務用スーパー、あとダイエーが近くにあるので買い物には困りません。イオンモール桂川も近くにあるのでさらに便利です。外食する場合は近くにガスト、お好み焼き屋、スシロー、京西京食堂、マクドナルド、焼肉屋、松の家、ジョイフル、そしてラーメンの第一旭などがあります。シャトレーゼなどお菓子屋もあるので飲食には全く困りません。
※口コミに関するお問い合わせはこちらからお願いします。





阪急嵐山線上桂駅から徒歩20分
見事な苔の庭園が有名
臨済宗の寺院。池泉回遊式庭園は京都屈指の名庭で、一面が苔で覆われたその様子から苔寺の名で親しまれている。拝観は申込制。世界遺産に登録されている。
提供元:昭文社

JR京都駅から京都バス73系苔寺すず虫寺行きで1時間、終点下車、徒歩3分
絨毯を敷いた様に見える苔の庭
「苔寺」の名で有名。夢窓疎石による作庭で、上段の枯山水、下段の池泉回遊式庭園の2段に分かれている。梅雨の時期は130種以上の苔が緑に輝き特に美しい。
提供元:昭文社



阪急嵐山線松尾大社駅から徒歩15分
鈴虫の声とともに幸福を届ける
大日如来を本尊とする臨済宗の寺院。良縁開運祈願の寺として有名。堂内で鈴虫を飼っていて、一年中涼やかな鳴き声が聞こえることから「鈴虫寺」と呼ばれている。
提供元:昭文社