102号室

写真を見る
8万円 (共益費 5,500円)
- 敷
- -
- 礼
- 80,000円
- 保
- -
- 償
- -
公開
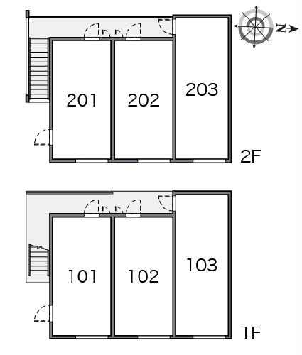
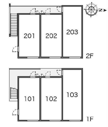
クレイノひまわりは、東京都練馬区春日町にある2階建の賃貸アパートです。築年月は、2019年4月で現在築7年になります。最寄り駅の都営大江戸線練馬春日町駅から徒歩8分です。
この建物に2件の情報更新日:
30代 / 女性 / 元住人
笹目通り沿いはどうしても交通量が激しく排気ガスや騒音は住んでいると不満も大きくなるかもしれません。周りに音がある方が安心する人なら住みやすいかもしれませんが。
50代 / 女性 / 住人
駅前には内科や眼科、皮膚科等一通りの病院が揃ってますので、急な病気に対応いただけます。また小児科もあり、小児病院が併設する病児保育室もあるようですので、子育て中の方には頼もしい存在かもしれません。近くに公立の小中学校があり、子育てには便利な立地です。
※口コミに関するお問い合わせはこちらからお願いします。




西武豊島線豊島園駅からすぐ
駅からすぐの好立地
水着着用で男女一緒に利用できるバーデゾーンが人気。円形のバーデプールのほかに、日本庭園に面した屋外エリアにはフィンランドサウナと2つのジャグジーがありカップルでサウナを楽しむことができる。緑に囲まれ23区内とは思えない雰囲気と、落ち着いた雰囲気が特徴。
提供元:昭文社


西武池袋線練馬駅から徒歩5分
20階の展望ロビーから眺める新宿副都心や富士山
天気のいい日には新宿副都心、東京スカイツリーや東京タワー、富士山までもが見渡せる。食事が楽しめる展望レストランや、練馬区公式キャラクター「ねり丸」と記念撮影ができるスポットもある。
提供元:昭文社




西武池袋線桜台駅から徒歩5分
良質なナトリウムー塩化物強塩と広がりのある空間を銭湯感覚で
地域のコミュニティの場として親しまれる公衆浴場に、現代風のアレンジを加えたモダンな施設。地下1500mから豊富に湧く自家源泉は、男女別の露天風呂に提供。ボディケアや足底リフレなどもおすすめ。
提供元:昭文社