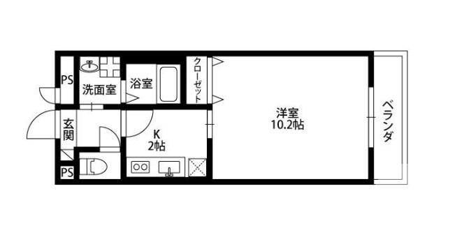
***号室

写真を見る
5.4万円 (共益費 3,000円)
- 敷
- -
- 礼
- 1ヶ月
- 保
- -
- 償
- -
公開
高倉台の完工年月(2010年3月)築の賃貸アパートは、大阪府堺市南区高倉台にある2階建の賃貸アパートです。築年月は、2010年3月で現在築16年になります。最寄り駅の南海泉北線泉ケ丘駅から徒歩17分です。
この建物に1件の情報更新日:
40代 / 男性 / 住人
駅前まで行けば複合商業施設やスーパーがあり、ある程度のものはそろうため、日常生活には全く支障がなく便利であるが、ホームセンターがないので不便な場合がある。
30代 / 男性 / 購入検討者
堺市南区は堺の中では特に子育て世代が多く住まれていることがあげられるので、子育て環境は良いと思います。
※口コミに関するお問い合わせはこちらからお願いします。



泉北高速鉄道光明池駅から徒歩15分
手織りを自分のペースで一日中楽しむ
「さをり」とは自分の感じるままに好きに織り、自己を表現するというアートとしての手織り。予約なしで自分のペースで一日中織れる。
提供元:昭文社




阪和自動車道堺ICから府道61号・36号で泉大津方面へ。鶴田池西交差点で左折し一般道で現地へ。堺ICから6km
一般にも広く開かれた野外活動施設
通年で利用でき、野外活動を学ぶことを目的にした青少年施設にあるキャンプ場。目の前に中津池が広がり、水面に映る夕焼けがきれいなレイクサイトが、ファミリー・小グループにおすすめ。
提供元:昭文社



JR阪和線和泉府中駅からコミュニティバス阪和沿線ルートで8分、第二住宅前下車、徒歩5分(日曜、祝日は運休)
春は桜の名所としてにぎわい、夜桜を楽しむこともできる
4月上旬頃は夜桜を満喫できる公園。葉桜の頃や桜の葉が茶色に色づく頃は、静かな散策スポットとして利用できる。子ども用複合遊具や広場、遊歩道など整備している。
提供元:昭文社