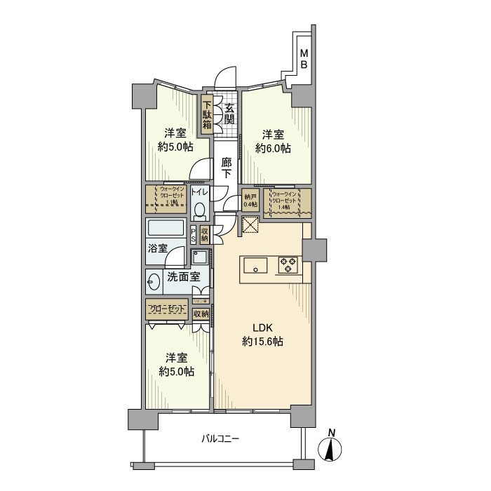
309号室

写真を見る
24万円 (共益費 -)
- 敷
- 2ヶ月
- 礼
- -
- 保
- -
- 償
- -
公開
ヴェレーナシティ横浜根岸ザ・フロントは、神奈川県横浜市磯子区東町にある7階建の賃貸マンションです。築年月は、2020年1月で現在築7年になります。最寄り駅の根岸線根岸駅から徒歩3分です。
この建物に2件の情報更新日:
取り扱う不動産会社・店舗が2社、募集中の部屋が2部屋あります。

写真を見る


24万円 (共益費 -)
公開

写真を見る


24万円 (共益費 -)
公開
掲載履歴とは、過去に掲載された時点の情報を履歴として一覧にまとめたものです。
※最終的な成約賃料とは異なる場合があります。また、将来の募集賃料を保証するものではありません。
30代 / 女性 / 元住人
小学校、中学校がともに近く、通学に便利。学校行事で行く大規模な公園も徒歩圏で、子供が運動をしやすい立地。
40代 / 女性 / 住人
市民の森が近く、農専地区もあり、横浜市内にいながら、豊かな自然を満喫できます。夏の森の匂い、畑の匂いは生命力に溢れています。カブトムシ、クワガタムシも捕まえられますし、獲れたて新鮮な野菜も買うことができます。
※口コミに関するお問い合わせはこちらからお願いします。




シーサイドライン南部市場駅からすぐ
食品から雑貨、日用品などの多彩な40店舗が揃う。食事処もある
水産・青果・食肉・卵・飲料から雑貨・日用品など一般消費者も買い物ができる商店として運営。店舗数43、場内の3ヶ所の食堂エリアに5店の食堂がある。
提供元:昭文社

京急本線京急富岡駅から徒歩8分
別名「波除八幡」とも呼ばれ、毎年7月と9月に祭礼が行われる
この地が埋め立てられる前は島のように突き出ていて、応長の津波のときに部落を守ったといわれることから、「波除八幡」の別名がある。毎年7月と9月に祭礼が行われる。
提供元:昭文社

JR根岸線港南台駅から徒歩15分
添加物を極力使わない季節の食材で作るパンが人気の店
パンの種類も豊富で車で訪れる客も多い住宅街にあるパン屋だ。季節の素材で極力添加物を使わない手作りパンが人気で菓子パンなどもあり子ども連れも多い。
提供元:昭文社