***号室

写真を見る
15.3万円 (共益費 4,000円)
- 敷
- 1ヶ月
- 礼
- 1.5ヶ月
- 保
- -
- 償
- -
公開
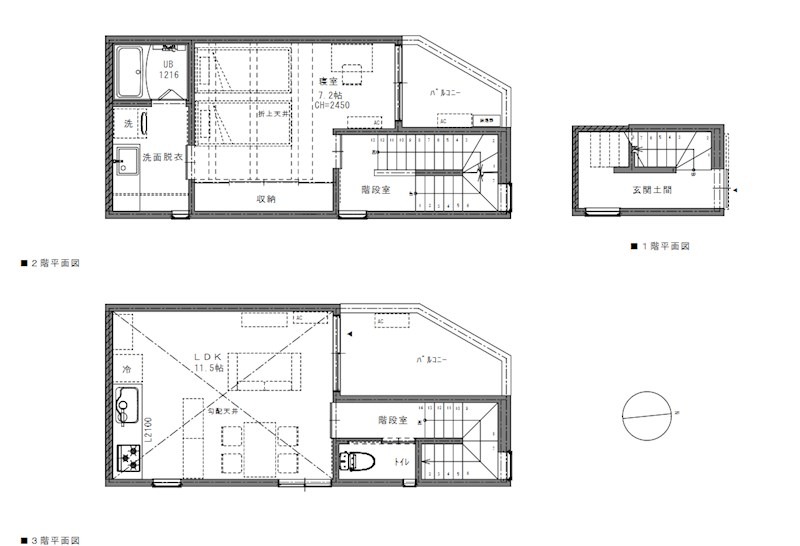
De machi maisonは、京都府京都市左京区田中関田町にある3階建の賃貸一戸建てです。築年月は、2024年9月で現在築2年になります。最寄り駅の京阪鴨東線出町柳駅から徒歩3分です。
この建物に1件の情報更新日:
20代 / 男性 / 元住人
近くに複数の小学校や中学があり、子育てには非常に適している環境だと思います。また、多くの保育園や幼稚園があり、子育てに対するサポートが充実していたと思います。病院も小さな病院から先進的な大学病院まで充実しており、非常に良かったです。救急治療から内科・外科と幅広い分野の病院が充実しており、地域としても子育てから医療に対するサポートが充実していると思いました。
30代 / 女性 / 元住人
北山周辺は閑静な住宅街なため、女性でも安心して暮らせました。夜も比較的静かで、女性一人暮らしの方でも安心出来ると思います。
※口コミに関するお問い合わせはこちらからお願いします。