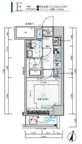
905号室

写真を見る
10万円 (共益費 15,000円)
- 敷
- -
- 礼
- 1ヶ月
- 保
- -
- 償
- -
公開
メインステージ横濱東口は、神奈川県横浜市西区高島にある9階建の賃貸マンションです。築年月は、2017年5月で現在築9年になります。最寄り駅の京浜東北・根岸線横浜駅から徒歩5分です。
この建物に2件の情報更新日:




JR横浜駅からすぐ
シウマイの名店で本格広東料理を
シウマイで有名な「崎陽軒」の本店には、中国料理「嘉宮」から、トラットリアやビアレストラン、ティーサロンまでさまざまなジャンルの飲食店がそろう。「嘉宮」では、広東料理をベースにした見ためにも美しい料理が味わえる。
提供元:昭文社

みなとみらい線みなとみらい駅から徒歩3分
ムーミン谷の不思議なスイーツ
童話『ムーミン』をモチーフにしたドリンクスタンド。モチモチ、ぷっくらした不思議な食感の“ニョロニョロのたね”をフルーツや濃厚ミルクベースのドリンクと楽しめる。
提供元:昭文社




みなとみらい線みなとみらい駅から徒歩3分
地上70階建てのみなとみらいのシンボル
平成5年に開業して以来、みなとみらい地区のシンボルとして親しまれる複合施設。360度の眺望が楽しめる69階の展望フロアや、魅力的なショップ、レストランが充実している。展望フロアへ向かう最高分速750mの日本最高速のエレベーターにも注目。
提供元:昭文社