1号室

写真を見る
6万円 (共益費 -)
- 敷
- -
- 礼
- 250,000円
- 保
- -
- 償
- -
公開
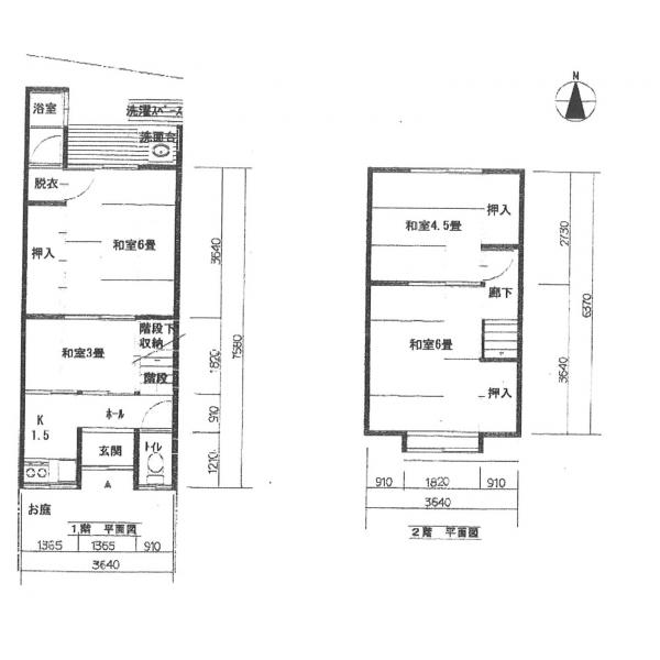
太秦西野町貸家は、京都府京都市右京区太秦西野町にある2階建の賃貸一戸建てです。築年月は、1970年6月で現在築56年になります。最寄り駅の嵐電(京福電鉄)嵐山本線帷子ノ辻駅から徒歩9分です。
この建物に2件の情報更新日:
参考賃料 |
6万円 |
|---|---|
間取り |
4K |
空室 |
2部屋 空室を見る |
物件種別 |
賃貸一戸建て |
階層 |
地上2階 |
構造 |
木造 |
築年数 |
1970年6月(築56年) |
駐車場 |
無 |
最寄駅 |
|
所在地 |
京都府京都市右京区太秦西野町 |
小学校学区 |
南太秦小学校 |
中学校学区 |
太秦中学校 |
50代 / 女性 / 住人
ロームという京都の大企業があり、そこの敷地に木々などの緑が多いため、住宅密集地という雰囲気があまりない。
20代 / 男性 / 賃貸検討者
治安や安全面について気になる点は特になかったです。強いて挙げるとすれば、葛野大路は大型車も通るので信号のない部分を渡るのは危険ということでしょうか。
※口コミに関するお問い合わせはこちらからお願いします。
JR京都駅からJRバス周山行きで1時間、栂ノ尾下車すぐ
色鮮やかな緑に包まれた川床へ
清滝川にのぞむ座敷で、川魚や鍋料理など季節の味覚が堪能できる。にしんそば、北山豆腐定食などがある。高山寺の門前にあるので観光の途中でひと息入れるにはぴったり。
提供元:昭文社




JR京都駅からJRバス周山行きで50分、槇ノ尾下車、徒歩3分
清流の音を聴きながら、三尾の紅葉を独り占め
純和風造りの閑静な宿で、古都の情緒を堪能できる。料理は旬の素材を使った京懐石が自慢。夏には川床での食事も楽しめる。6月は飛び交うホタルを眺められ、なんとも風流。
提供元:昭文社

JR京都駅からJRバス周山行きで1時間20分、京北合同庁舎前下車すぐ
樹齢およそ600年という櫓杉の展示は必見
京都中部地域の森林・林業への理解を広げることを目的とした施設。地元京北地域の料理や特産品など、地元の各団体の旗艦店として京北地域の魅力を発信している。
提供元:昭文社