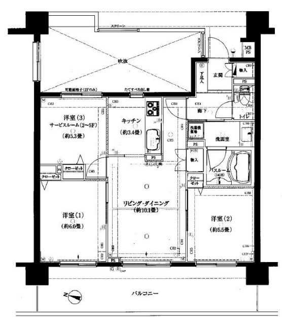
404号室

14.1万円 (共益費 15,000円)
- 敷
- -
- 礼
- 1ヶ月
- 保
- -
- 償
- -
公開
クリオ川崎鋼管通は、神奈川県川崎市川崎区鋼管通にある9階建の賃貸マンションです。築年月は、2003年8月で現在築23年になります。最寄り駅の南武線浜川崎駅から徒歩7分です。
この建物に1件の情報更新日:
30代 / 男性 / 賃貸検討者
日中は穏やかで落ち着いた雰囲気ですが、夜は人通りが少なくなるため、帰宅が遅い方や一人暮らしの方は少し注意が必要かもしれません。街灯はありますが、場所によっては暗く感じる所もあります。
30代 / 女性 / 住人
近くに大師公園や川崎大師、多摩川河川敷などお散歩にいい環境が揃っている。 小児科も近くにある。 子育て支援センターもすぐ近くにある。 周辺に保育園も多い。
※口コミに関するお問い合わせはこちらからお願いします。


京急大師線東門前駅から徒歩10分
アスレチック広場や各種スポーツ施設が充実
川崎大師の南側に隣接する公園。アスレチック広場や各種スポーツ施設などがあり、ファミリーで楽しめる。友好都市である中国・瀋陽市から贈られた瀋秀園は見事な中国式庭園。
提供元:昭文社




京急大師線東門前駅から徒歩10分
瀋陽市の美しい景観を模した中国式庭園
川崎大師の南側に隣接する大師公園内にある中国式庭園。瀋秀園の「瀋」は、「瀋陽市」の略称で、「秀」はきれいという意味。瀋陽市のきれいな景色を集めた庭園となっている。
提供元:昭文社

京急大師線川崎大師駅から徒歩5分
軽快な飴を切る音が聞こえる通り
参道を曲がって大山門までの約200mの通り。沿道には、大師名物のくず餅屋、飴屋、だるま屋などが並ぶ。名物でもあるリズミカルに飴を切る音は、「日本の音風景百選」にも選ばれている。
提供元:昭文社