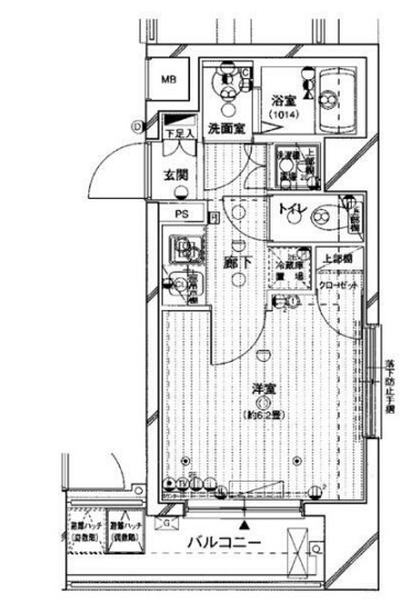
403号室

写真を見る
8.8万円 (共益費 10,000円)
- 敷
- -
- 礼
- 1ヶ月
- 保
- -
- 償
- -
公開
プレール・ドゥーク東京ベイⅢは、東京都港区海岸にある9階建の賃貸マンションです。築年月は、2006年1月で現在築21年になります。最寄り駅のゆりかもめ(東京臨海新交通臨海線)芝浦ふ頭駅から徒歩11分です。
この建物に1件の情報更新日:
30代 / 男性 / 元住人
周辺は高級住宅街なので、静かで、治安もよいです。徒歩圏内に、有名人の邸宅や大使館がいくつかあります。清掃工場もありますが、まったく気になりません。 〓〓〓 追記 〓〓〓 大通りから離れているので、騒音は皆無です。子ども等の声も聞こえません。周りは高級住宅街ですので、治安面も安心です。清掃工場方面に150mほど歩くと公園もあるので、お子様がいらっしゃるご家庭にもいいと思います。清掃工場からの異臭等の不具合は感じたことはありません。
30代 / 女性 / 住人
周囲は大使館が多く道路に警官が立っており、またこの地域に住んでいる方々は所得の良い方がほとんどだからか、治安はかなりいい方です。真夜中に女性ひとり歩いていても、不安になることもありません。変な人間や、六本木のように泥酔して道路で寝ている人もいません。 たまーに外国人が道端で固まっていてうるさい、邪魔、と感じることはありますが、柄が悪い印象は受けません。
※口コミに関するお問い合わせはこちらからお願いします。


JR山手線目黒駅から徒歩5分
路地裏食堂の絶品創作オムライス
山のようなオムライスが食べられる小さな食堂。イチオシの「お正油オムライス」は、ナンプラーで味付けしたご飯を使ったオムライス。洋食なのに口の中に広がるのは和の風味という意外性を楽しめて、その味も格別の一品。
提供元:昭文社