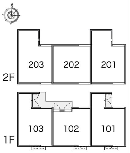
202号室

写真を見る
10.2万円 (共益費 5,500円)
- 敷
- -
- 礼
- 102,000円
- 保
- -
- 償
- -
公開
レオネクストダリアは、東京都大田区西糀谷にある2階建の賃貸アパートです。築年月は、2009年12月で現在築17年になります。最寄り駅の京急空港線糀谷駅から徒歩4分です。
この建物に4件の情報更新日:
取り扱う不動産会社・店舗が4社、募集中の部屋が4部屋あります。

写真を見る



10.2万円 (共益費 5,500円)
公開

写真を見る



10.2万円 (共益費 5,500円)
公開

写真を見る



10.2万円 (共益費 5,500円)
公開

写真を見る



10.2万円 (共益費 5,500円)
公開
30代 / 男性 / 住人
最寄りの矢口渡駅前は、北側と南側で雰囲気が違います。物件のある南側はすぐに商店街があり、常に人がいますし、夜でも終電までは帰宅する人たちや飲み屋から出てくる人で賑わっています。本当のたまに、酔っ払いがいますが、お巡りさんもよく見かけますし、治安はかなり良いと思います。
30代 / 女性 / 住人
SEIYU、イトーヨーカドー、百均、個人の八百屋さんがありとても便利です。駅の反対側には、オオゼキ、肉のハナマサ、しまむらと充実しています。アトレには成城石井やカルディ、地下に食料品店と充実かと。駅ビルにはパン屋もあり美味しいです。カフェも多い。 入新井出張所もあり行政のサービスも便利。 ベルポートや商店街にも郵便局、ATMと充実。
※口コミに関するお問い合わせはこちらからお願いします。




JR京浜東北線蒲田駅から京急バス仲六郷経由六郷神社・羽田車庫方面行きで4分、蒲田本町下車すぐ
黒湯温泉が楽しめる
昭和レトロの香り濃厚な、昔懐かしい公衆浴場。熱めとぬるめの黒湯をはじめ、電気風呂やサウナもある。温泉で温まった後は、70畳の大広間でごろりのんびりと過ごしたい。
提供元:昭文社




京急本線平和島駅から徒歩10分(JR大森駅・京急平和島駅からワンコイン100円送迎バスあり)
保湿効果が高い天然の食塩泉を使用
保湿効果が高い食塩泉の泉質が特徴の天然温泉を使用している。圧注浴や寝湯、話題のロウリュウサウナは毎日開催中。バラエティー豊富なマッサージやリラクゼーションもおすすめ。岩盤浴では、漫画を持ち込める。
提供元:昭文社

JR京浜東北線蒲田駅からすぐ
ファッションや雑貨、コスメ、食品など日常生活用品が揃う
ファッション性と日常性を兼ね備えた、ライフスタイル提案型商業施設。都内で唯一現存する屋上観覧車は子どもたちに大人気。
提供元:昭文社