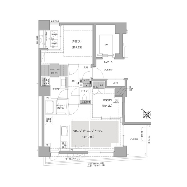
0201号室

写真を見る
27.9万円 (共益費 15,000円)
- 敷
- 1ヶ月
- 礼
- -
- 保
- -
- 償
- -
公開
エルスタンザ文京白山は、東京都文京区白山にある10階建の賃貸マンションです。築年月は、2018年2月で現在築8年になります。最寄り駅の都営三田線千石駅から徒歩7分です。
この建物に6件の情報更新日:
取り扱う不動産会社・店舗が3社、募集中の部屋が6部屋あります。

写真を見る











27.9万円 (共益費 15,000円)
公開

写真を見る











27.9万円 (共益費 15,000円)
公開

写真を見る











27.9万円 (共益費 15,000円)
公開

写真を見る











16.7万円 (共益費 10,000円)
公開

写真を見る











16.7万円 (共益費 10,000円)
公開

写真を見る











16.7万円 (共益費 10,000円)
公開
40代 / 女性 / 元住人
子供からお年寄りまで、幅広い年齢層の人が住んでいる地域なのがよかった。数年住んでいて一度だけ酔っ払いに夜中絡まれたけど、その一度きりだったので(そして通りすがりの人がすぐ助けてくれた)、ほかの東京の地域に比べて治安が良いと感じました。
30代 / 女性 / 住人
近くに東大植物園、占春園、教育の森公園、播磨坂など都心なのに緑が多いです。お子様のいるご家庭には申し分ない住環境と思います。植物園のある地盤なので土地がしっかりしていると感じます。
※口コミに関するお問い合わせはこちらからお願いします。


JR山手線池袋駅から徒歩8分
楽しいアトラクションやフードが充実
13のアトラクションと、餃子やデザートなどのフードが充実した屋内型テーマパーク。園内は西洋風、昭和レトロ、もののけ番外地の3つの街区に分かれており、それぞれ違った雰囲気が味わえる。
提供元:昭文社




地下鉄東池袋駅から徒歩5分
天空のオアシスを基本コンセプトにした水族館
ビル屋上にある都市型高層水族館。大海の旅、水辺の旅、天空の旅の3エリアに分かれており、ペンギンが空を飛ぶように泳ぐ水槽や、日本最大級のクラゲ水槽を含むクラゲエリアなど、ユニークな展示を実施。水の世界を五感で体験できる。
提供元:昭文社




地下鉄東池袋駅から徒歩10分
深い奥行き感のあるリアルな星空を体感
全天ドームスクリーンに映し出される8Kマルチプロジェクションシステムにより、臨場感の高い鮮やかな映像を実現。リニューアルにより、寝転んで星空を眺められる『雲シート』とともに大人気の『芝シート』が更に心ときめくエリアに。プラネタリウムの伝説的名作『銀河鉄道の夜』を、満天史上最も美しいクオリティで上映する。都会の真ん中で体感したことのない世界に浸れ、特別な時間を堪能できる。
提供元:昭文社