***号室

写真を見る
37.9万円 (共益費 20,000円)
- 敷
- 1ヶ月
- 礼
- -
- 保
- -
- 償
- -
公開
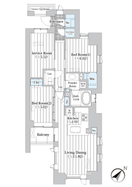
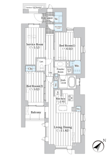
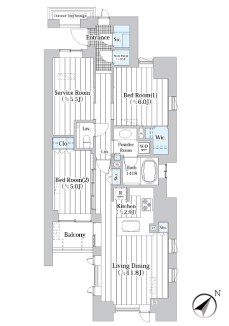
ザ・グランクラッセ日本橋イーストは、東京都中央区新川にある12階建の賃貸マンションです。築年月は、2020年10月で現在築6年になります。最寄り駅の京葉線八丁堀駅から徒歩4分です。
この建物に6件の情報更新日:
取り扱う不動産会社・店舗が2社、募集中の部屋が6部屋あります。

写真を見る


37.9万円 (共益費 20,000円)
公開

写真を見る


37.9万円 (共益費 20,000円)
公開

写真を見る




41.1万円 (共益費 20,000円)
公開

写真を見る




41.1万円 (共益費 20,000円)
公開

写真を見る



41.2万円 (共益費 20,000円)
公開

写真を見る



41.2万円 (共益費 20,000円)
公開
掲載履歴とは、過去に掲載された時点の情報を履歴として一覧にまとめたものです。
※最終的な成約賃料とは異なる場合があります。また、将来の募集賃料を保証するものではありません。
40代 / 女性 / 元住人
そもそもビジネス街なので休日や夜は静かです。不審な人や騒ぐ人などは立地的にほぼいません。警察も交番も近くです。
50代 / 男性 / 住人
都心ですが繁華街ではないので、わざわざ集まってくるガラの悪い集団などはおらず、治安はよいと思います。 せいぜい周辺で働いているサラリーマンが酔っ払っている程度です。 夜間も明るく道も広いので安心できます。
※口コミに関するお問い合わせはこちらからお願いします。




JR総武線両国駅から徒歩3分
庶民の暮らしに寄り添う寺
江戸を焼き尽くした明暦の大火の犠牲者のためにお堂を建てたのが始まりで、江戸中期以降は全国の寺社の秘仏開帳の場となった。江戸時代から戦前までの相撲興行地でもある。
提供元:昭文社




JR総武線両国駅から徒歩3分
5種類のちゃんこが楽しみ
「井筒三兄弟」と謳われた元鶴嶺山関がオーナーを務める。ちゃんこは醤油、味噌、塩、カレー、ポン酢の5種類があり、いずれも野菜と肉、スープの味のバランスが絶妙だ。
提供元:昭文社




JR総武線両国駅からすぐ
“生”だからこその迫力に興奮
相撲のメッカ・両国のシンボル的存在。年に3回、1・5・9月に大相撲東京場所が開催される。相撲のほか、第九コンサートや各種イベントも開催される。相撲博物館も併設。
提供元:昭文社