***号室

写真を見る
5.7万円 (共益費 3,000円)
- 敷
- -
- 礼
- -
- 保
- -
- 償
- -
公開
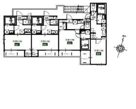
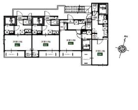
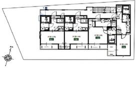
メルディア新里町は、埼玉県草加市新里町にある3階建の賃貸アパートです。築年月は、2021年10月で現在築5年になります。最寄り駅の日暮里・舎人ライナー見沼代親水公園駅から徒歩14分です。
この建物に6件の情報更新日:
参考賃料 |
5.4万円~5.7万円 |
|---|---|
間取り |
1K |
空室 |
6部屋 空室を見る |
物件種別 |
賃貸アパート |
階層 |
地上3階 |
構造 |
木造 |
築年数 |
2021年10月(築5年) |
駐車場 |
無 |
最寄駅 |
|
所在地 |
埼玉県草加市新里町 |
小学校学区 |
新里小学校 |
中学校学区 |
両新田中学校 |
取り扱う不動産会社・店舗が6社、募集中の部屋が6部屋あります。

写真を見る























5.7万円 (共益費 3,000円)
公開

写真を見る























5.7万円 (共益費 3,000円)
公開

写真を見る























5.7万円 (共益費 3,000円)
公開

写真を見る























5.7万円 (共益費 3,000円)
公開

写真を見る























5.7万円 (共益費 3,000円)
公開

写真を見る












5.7万円 (共益費 3,000円)
公開
掲載履歴とは、過去に掲載された時点の情報を履歴として一覧にまとめたものです。
※最終的な成約賃料とは異なる場合があります。また、将来の募集賃料を保証するものではありません。

東武スカイツリーライン草加駅から徒歩12分
パリパリの草加せんべい
明治創業以来、伝統の手作り製法を基本に独自の風味を生かした草加せんべいを作り続ける老舗店。せんべいの手焼き体験も受け付けており、1人1枚から予約なしでOK。
提供元:昭文社

東武スカイツリーライン草加駅から徒歩7分
小学校の校舎を改修した資料館で地域の歴史・文化を知る
旧草加小学校西校舎を改修した資料館。大正時代の鉄筋コンクリート造りで、国の登録有形文化財。農具、里神楽などの民俗資料、土器や板碑、縄文時代の丸木舟を展示している。
提供元:昭文社


東武スカイツリーライン草加駅から徒歩12分
伝統的な米の風味を生かした手焼きの天日干しせんべいを販売
米の風味を生かすため、天日で3~5日干した生地を備長炭の炭火で手焼きにする草加でも数少ない伝統を継承する店。天日干しせんべいは生地のみの販売もしている。
提供元:昭文社