仮)香椎駅東2丁目新築アパート
賃貸アパート
- 所在地
- 福岡県福岡市東区香椎駅東
- 最寄駅
-
- 鹿児島本線 香椎駅 (徒歩5分)
- 西鉄貝塚線 西鉄香椎駅 (徒歩7分)
- 築年月
- 2026年4月
- 構造
- 鉄骨造
- 階数
- 地上2階
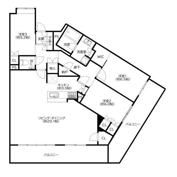
***号室

写真を見る
7.6万円(共益費 4,000円)
- 敷
- 1ヶ月
- 礼
- 1ヶ月
- 保
- -
- 償
- -
公開










