シエールグラン洋光台南公園
賃貸マンション
- 所在地
- 神奈川県横浜市磯子区洋光台
- 最寄駅
-
- 京浜東北・根岸線 洋光台駅 (徒歩11分)
- 築年月
- 2002年8月
- 構造
- RC
- 階数
- 地上5階
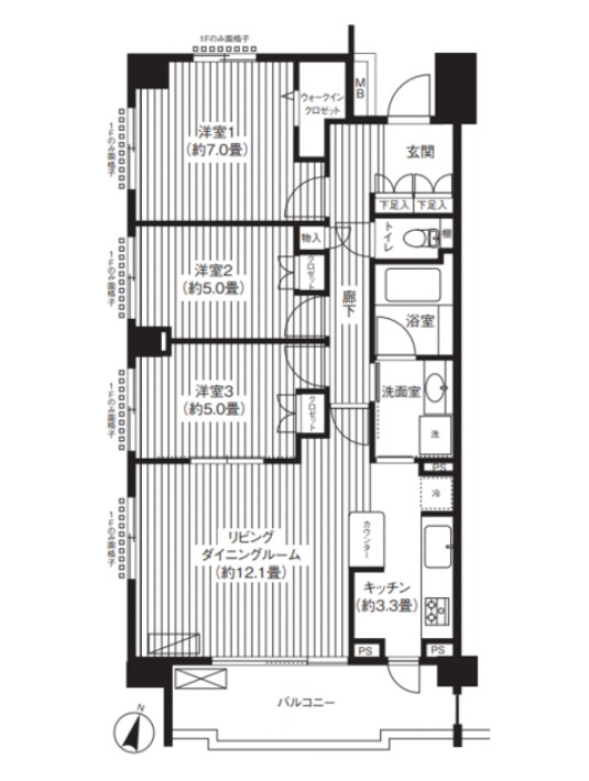
307号室

写真を見る
15.8万円(共益費 10,000円)
- 敷
- 1ヶ月
- 礼
- 1ヶ月
- 保
- -
- 償
- -
公開






