ファーストステージ京町堀レジデンス 賃貸マンション 所在地 大阪府 大阪市西区 京町堀 最寄駅 大阪メトロ 四つ橋線 肥後橋駅 (徒歩7分) 大阪メトロ 御堂筋線 本町駅 (徒歩10分) 築年月 2016年12月 構造 RC 階数 地上15階 901号室 写真を見る 7万円(共益費 10,000円) 敷 - 礼 2ヶ月 保 - 償 - 9階 / 1K / 25.69㎡ 2025/11/19公開 ミニミニ FC肥後橋店 お気に入りに追加 詳細を見る
901号室 写真を見る 7万円(共益費 10,000円) 敷 - 礼 2ヶ月 保 - 償 - 9階 / 1K / 25.69㎡ 2025/11/19公開 ミニミニ FC肥後橋店 お気に入りに追加 詳細を見る
寺地町西の2016/12築の賃貸アパート 賃貸アパート 所在地 大阪府 堺市堺区 寺地町西 最寄駅 南海本線 堺駅 (徒歩10分) 南海本線 湊駅 (徒歩14分) 築年月 2016年12月 構造 木造 階数 地上3階 ***号室 写真を見る 5.6万円(共益費 4,000円) 敷 - 礼 50,000円 保 - 償 - 2階 / 1K / 27.54㎡ 2025/11/23公開 クラスモ FCなかもず店 お気に入りに追加 詳細を見る
***号室 写真を見る 5.6万円(共益費 4,000円) 敷 - 礼 50,000円 保 - 償 - 2階 / 1K / 27.54㎡ 2025/11/23公開 クラスモ FCなかもず店 お気に入りに追加 詳細を見る
ラ ヴィ カルム 賃貸マンション 所在地 大阪府 高石市 西取石 最寄駅 南海本線 高石駅 (徒歩13分) 阪和線 富木駅 (徒歩20分) 築年月 2016年11月 構造 RC 階数 地上4階 207号室 写真を見る 7.05万円(共益費 4,600円) 敷 - 礼 120,000円 保 - 償 - 2階 / 1LDK / 45.93㎡ 2025/11/23公開 ハウスコム 和泉府中店 お気に入りに追加 詳細を見る
207号室 写真を見る 7.05万円(共益費 4,600円) 敷 - 礼 120,000円 保 - 償 - 2階 / 1LDK / 45.93㎡ 2025/11/23公開 ハウスコム 和泉府中店 お気に入りに追加 詳細を見る
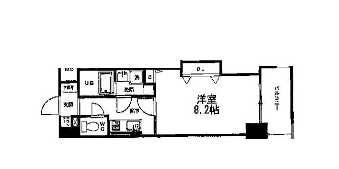
プリマヴェーラ南森町 賃貸マンション 所在地 大阪府 大阪市北区 西天満 最寄駅 大阪メトロ 谷町線 南森町駅 (徒歩6分) 京阪中之島線 なにわ橋駅 (徒歩5分) 築年月 2016年11月 構造 RC 階数 地上13階 ***号室 写真を見る 6.9万円(共益費 7,000円) 敷 - 礼 1ヶ月 保 - 償 - 13階 / 1K / 19.44㎡ 2025/11/23公開 ハウスコム FC新大阪北店 お気に入りに追加 詳細を見る
***号室 写真を見る 6.9万円(共益費 7,000円) 敷 - 礼 1ヶ月 保 - 償 - 13階 / 1K / 19.44㎡ 2025/11/23公開 ハウスコム FC新大阪北店 お気に入りに追加 詳細を見る
F+style羽衣1号館 賃貸アパート 所在地 大阪府 高石市 羽衣 最寄駅 阪和線 東羽衣駅 (徒歩5分) 南海本線 羽衣駅 (徒歩6分) 築年月 2016年10月 構造 木造 階数 地上3階 101号室 写真を見る 6.4万円(共益費 3,000円) 敷 - 礼 80,000円 保 - 償 - 1階 / 1LDK / 36.48㎡ 2025/11/22公開 ハウスコム 和泉府中店 お気に入りに追加 詳細を見る
101号室 写真を見る 6.4万円(共益費 3,000円) 敷 - 礼 80,000円 保 - 償 - 1階 / 1LDK / 36.48㎡ 2025/11/22公開 ハウスコム 和泉府中店 お気に入りに追加 詳細を見る
SERENiTE堺筋本町SUD 賃貸マンション 所在地 大阪府 大阪市中央区 北久宝寺町 最寄駅 大阪メトロ 中央線 堺筋本町駅 (徒歩6分) 大阪メトロ 御堂筋線 本町駅 (徒歩9分) 築年月 2016年10月 構造 RC 階数 地上15階 ***号室 写真を見る 8.7万円(共益費 8,000円) 敷 - 礼 142,500円 保 - 償 - 2階 / 1DK / 27.54㎡ 2025/11/23公開 ハウスコム FC新大阪北店 お気に入りに追加 詳細を見る ***号室 写真を見る 7.5万円(共益費 7,000円) 敷 - 礼 123,000円 保 - 償 - 2階 / 1K / 22.77㎡ 2025/11/23公開 ミニミニ FC本町店 お気に入りに追加 詳細を見る ***号室 写真を見る 7.9万円(共益費 7,000円) 敷 - 礼 129,000円 保 - 償 - 14階 / 1K / 23.28㎡ 2025/11/23公開 ミニミニ FC本町店 お気に入りに追加 詳細を見る
***号室 写真を見る 8.7万円(共益費 8,000円) 敷 - 礼 142,500円 保 - 償 - 2階 / 1DK / 27.54㎡ 2025/11/23公開 ハウスコム FC新大阪北店 お気に入りに追加 詳細を見る
***号室 写真を見る 7.5万円(共益費 7,000円) 敷 - 礼 123,000円 保 - 償 - 2階 / 1K / 22.77㎡ 2025/11/23公開 ミニミニ FC本町店 お気に入りに追加 詳細を見る
***号室 写真を見る 7.9万円(共益費 7,000円) 敷 - 礼 129,000円 保 - 償 - 14階 / 1K / 23.28㎡ 2025/11/23公開 ミニミニ FC本町店 お気に入りに追加 詳細を見る
エステムコート難波Ⅲラグース 賃貸マンション 所在地 大阪府 大阪市浪速区 日本橋 最寄駅 大阪メトロ 堺筋線 恵美須町駅 (徒歩5分) 大阪メトロ 御堂筋線 なんば駅 (徒歩9分) 築年月 2016年10月 構造 RC 階数 地上15階 ***号室 写真を見る 7.5万円(共益費 10,000円) 敷 1ヶ月 礼 - 保 - 償 1ヶ月 4階 / 1DK / 28.14㎡ 2025/11/23公開 ミニミニ FC心斎橋店 お気に入りに追加 詳細を見る
***号室 写真を見る 7.5万円(共益費 10,000円) 敷 1ヶ月 礼 - 保 - 償 1ヶ月 4階 / 1DK / 28.14㎡ 2025/11/23公開 ミニミニ FC心斎橋店 お気に入りに追加 詳細を見る
ルーエ本町 賃貸マンション 所在地 大阪府 大阪市中央区 南本町 最寄駅 大阪メトロ 中央線 堺筋本町駅 (徒歩3分) 大阪メトロ 御堂筋線 本町駅 (徒歩7分) 築年月 2016年10月 構造 RC 階数 地上13階 ***号室 写真を見る 7.2万円(共益費 10,000円) 敷 82,000円 礼 82,000円 保 - 償 - 7階 / 1K / 23.40㎡ 2025/11/23公開 ハウスコム FC新大阪北店 お気に入りに追加 詳細を見る ***号室 写真を見る 7.5万円(共益費 10,000円) 敷 85,000円 礼 85,000円 保 - 償 - 12階 / 1K / 23.40㎡ 2025/11/23公開 ハウスコム FC新大阪北店 お気に入りに追加 詳細を見る
***号室 写真を見る 7.2万円(共益費 10,000円) 敷 82,000円 礼 82,000円 保 - 償 - 7階 / 1K / 23.40㎡ 2025/11/23公開 ハウスコム FC新大阪北店 お気に入りに追加 詳細を見る
***号室 写真を見る 7.5万円(共益費 10,000円) 敷 85,000円 礼 85,000円 保 - 償 - 12階 / 1K / 23.40㎡ 2025/11/23公開 ハウスコム FC新大阪北店 お気に入りに追加 詳細を見る
大浜南町の2016/10築の賃貸アパート 賃貸アパート 所在地 大阪府 堺市堺区 大浜南町 最寄駅 南海本線 湊駅 (徒歩4分) 南海本線 堺駅 (徒歩21分) 築年月 2016年10月 構造 木造 階数 地上3階 ***号室 写真を見る 5.1万円(共益費 4,750円) 敷 - 礼 60,000円 保 - 償 - 1階 / 1K / 26.28㎡ 2025/11/23公開 クラスモ FCなかもず店 お気に入りに追加 詳細を見る ***号室 写真を見る 5.2万円(共益費 4,750円) 敷 - 礼 50,000円 保 - 償 - 1階 / 1K / 29.16㎡ 2025/11/23公開 クラスモ FCなかもず店 お気に入りに追加 詳細を見る
***号室 写真を見る 5.1万円(共益費 4,750円) 敷 - 礼 60,000円 保 - 償 - 1階 / 1K / 26.28㎡ 2025/11/23公開 クラスモ FCなかもず店 お気に入りに追加 詳細を見る
***号室 写真を見る 5.2万円(共益費 4,750円) 敷 - 礼 50,000円 保 - 償 - 1階 / 1K / 29.16㎡ 2025/11/23公開 クラスモ FCなかもず店 お気に入りに追加 詳細を見る
翁橋町の2016/10築の賃貸マンション 賃貸マンション 所在地 大阪府 堺市堺区 翁橋町 最寄駅 南海高野線 堺東駅 (徒歩8分) 南海本線 堺駅 (徒歩18分) 築年月 2016年10月 構造 RC 階数 地上10階 ***号室 写真を見る 5.9万円(共益費 6,000円) 敷 - 礼 50,000円 保 - 償 - 10階 / 1K / 27.60㎡ 2025/11/23公開 クラスモ FCなかもず店 お気に入りに追加 詳細を見る ***号室 写真を見る 6万円(共益費 6,000円) 敷 - 礼 50,000円 保 - 償 - 10階 / 1K / 27.52㎡ 2025/11/23公開 クラスモ FCなかもず店 お気に入りに追加 詳細を見る
***号室 写真を見る 5.9万円(共益費 6,000円) 敷 - 礼 50,000円 保 - 償 - 10階 / 1K / 27.60㎡ 2025/11/23公開 クラスモ FCなかもず店 お気に入りに追加 詳細を見る
***号室 写真を見る 6万円(共益費 6,000円) 敷 - 礼 50,000円 保 - 償 - 10階 / 1K / 27.52㎡ 2025/11/23公開 クラスモ FCなかもず店 お気に入りに追加 詳細を見る