出島海岸通の2025/09築の賃貸マンション
賃貸マンション
- 所在地
- 大阪府堺市堺区出島海岸通
- 最寄駅
-
- 南海本線 湊駅 (徒歩2分)
- 阪堺電車阪堺線 御陵前駅 (徒歩12分)
- 築年月
- 2025年9月
- 構造
- RC
- 階数
- 地上14階
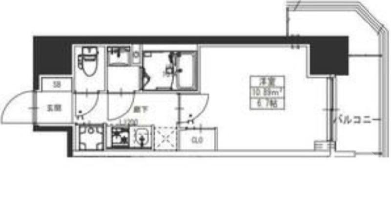
***号室

写真を見る
5.6万円(共益費 10,000円)
- 敷
- -
- 礼
- 1ヶ月
- 保
- -
- 償
- -
公開









